Hausbeschreibung
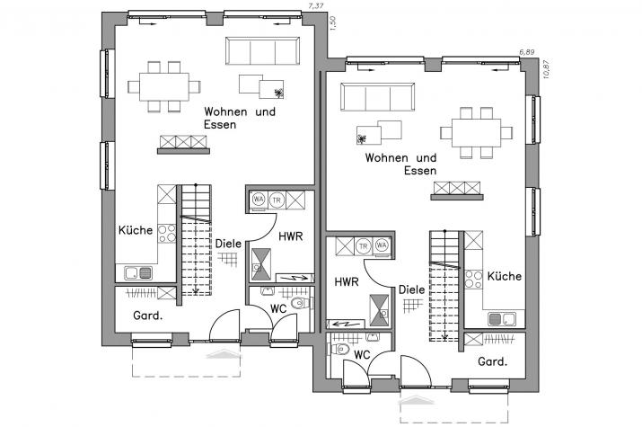
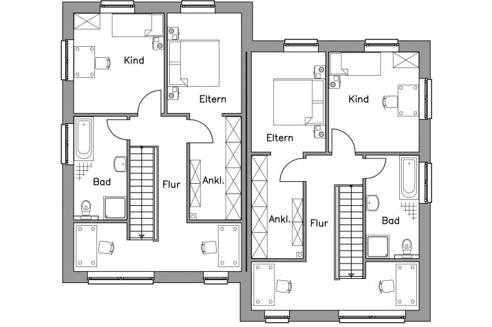
Bei ständig steigenden Grundstückspreisen ist eine Doppelhaushälfte eine Alternative, die sich rechnet. Und zwar ohne auf Wohn- und Platzkomfort zu verzichten. Die Baudirekt-Hausidee DH 120 zeigt, wie individuell auch das Wohnen "Wand an Wand" umgesetzt werden kann.
Mehr Massiv-Hausideen finden Sie unter www.baudirekt.de
Sonstiges
Der Baupreis ist abhängig vom Bauort. Die Preisliste für Ihre Region erhalten Sie mit dem Baudirekt-Hauskatalog zugesandt.
Extras und Besonderheiten
Extras
Wahlweise (preisgleich) inklusive Luft-/Wasserwärmepumpe, Fußbodenheizung, Feuchtraumentlüfter oder Gas-Brennwerttherme und zentrale Be- und Entlüftungsanlage mit Wärmerückgewinnung. Auch als KfW-Effizienzhaus 55 möglich (Preis siehe www.baudirekt.de).
Besonderheiten
Bei Baudirekt gilt ein Grundsatz: Sie zahlen nur nach erbrachter (Bau-)Leistung. Dazu steht Ihnen ein Bauleiter zur Seite, der in Ihrem Sinne die Bauleistung der Handwerker überprüft. Nur nach seinem fachmännischen Urteil zahlen Sie ohne Umwege direkt auf die Konten der Handwerksunternehmen - Ihr Geld kommt da an, wo es hingehört.
Erst gebaut, dann bezahlt: Also keinen Cent zu früh oder zu viel, das macht den Einzug in Ihr Haus sicher - das garantieren wir!
- Massivbauweise (Stein auf Stein gemauert)
- Zahlung erst nach erbrachter Bauleistung direkt auf die Konten der Handwerker (Erst gebaut, dann bezahlt!)
- Baugewährleistungs-Versicherung (Versicherungssumme bis 150.000,- Euro)
- Baubegleitendes Qualitätscontrolling durch TÜV-SÜD
- Baugrundgutachten
- unabhängige Bauleitung
- SiGeKo für die Sicherheit auf der Baustelle
- EnEV-Sachverständigengutachten und -bescheinigung
- freie Wahl der Baustoffe, der Technik und der Ausstattung
- höchstmögliche Flexibilität, wenn es um Ihre Wünsche geht
- bestmögliche, transparente Baupreise durch Handwerkerausschreibung
- regionale Handwerker
- qualitätsgeprüfte Handwerkerleistungen
- 30 Jahre Bauerfahrung im Unternehmensverbund
Weitere Infos finden Sie unter www.baudirekt.de
Selbstverständlich inklusive sind:
die Hausplanung mit
- Architektur
- Statik
- Bauantragsplanung
- Bauleitung
- Planung und Ausführung gemäß neuester EnEV und EEWärmeG
der Rohbau mit
- Erdarbeiten, Gebäudeentwässerung
- Fundamenten, Sohlplatte
- Maurer- und Stahlbetonarbeiten
- Zimmerer-, Dachdecker-, Klempnerarbeiten
- Betondecke (außer bei Bungalows und 2. Decke bei 2-geschossiger Bauweise)
- Putzfassade mit Wärmedämmverbundsystem
der Innenausbau mit
- kompletter Elektroinstallation
- kompletter Heizungs- und Sanitärinstallation (inkl. Brennwertherme)
- Badewanne und Dusche
- wandhängendem WC
- Kunststofffenster und Außentüren
- Schwimmenden Estrich mit Wärme-Trittschall-Dämmung
- Innenputz und Trockenausbau
- Fliesenarbeiten im Bad, WC und Küche
- Bodeneinschubtreppe
- Innentüren
- Vollholzwangentreppe
Anbieterdetails





