Hausbeschreibung
Luxusvilla mit vielen Raffinessen
Ein Ehepaar wohnte mit ihren zwei Kindern jahrzehntelang über ihrem Betrieb, einer alteingesessenen Schreinerei im Norden von Lindau. Selbst und ständig, so war das Leben der Besitzer. Morgens ab sechs Uhr rollten die ersten Lastwagen auf den Hof und abends kam häufig noch ein Kunde vorbei, um schnell etwas reparieren zu lassen. „Wohnen und arbeiten unter einem Dach kann praktisch sein, aber meine Frau und ich sind über 50 Jahre alt, da war es unser größter Wunsch, dass etwas mehr Ruhe einkehrt und der Wohnkomfort modernen Bedürfnissen entspricht“, erklärt der Bauherr. Weil seine Firma eng mit dem Allgäuer Ökohaus-Pionier Baufritz verbunden ist, einem Vorreiter im klimaneutralen und nachhaltigen Hausbau, lag es nahe, dass sich das Paar für das renommierte Unternehmen aus Erkheim entscheiden würde.
Nach fünf Jahren geduldiger Suche fanden beide ein über 1500m² großes Grundstück, in einer Sackgasse gelegen, direkt am Waldrand.
Der Neubau musste drei wesentliche Eckpunkte erfüllen: er sollte behindertengerecht und wartungsarm sein und Platz für mehrere Fahrzeuge bieten. Alle Familien-mitglieder sind auf das Auto angewiesen – die Kinder, längst erwachsen. Nach intensiven Gesprächen und herausragender Planungsleistung stand der ungewöhnliche Entwurf:
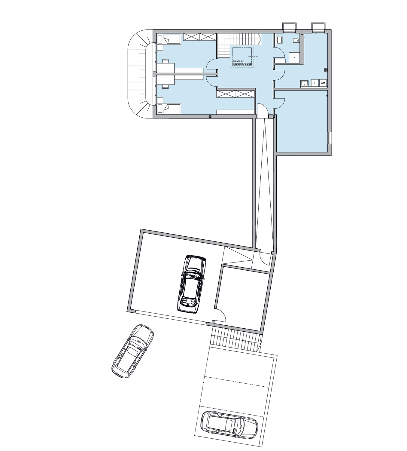
Die Hangneigung mit einem Niveauunterschied von 3,50 Metern ermöglichte, dass die Garage am Ende des Grundstücks zur Straße hin unter die Erde gebracht werden konnte. So blieb der Garten nach Süden vollständig erhalten. Zusätzlich fand noch ein großzügiger Pool Platz. Ein privater Tunnel führt von der Tiefgarage direkt ins Untergeschoss. Hier haben Tochter und Sohn ihr eigenes Reich mit einem separaten Bad. Durch eine Abböschung nach Westen erhalten die Zimmer genügend Tageslicht. Daneben liegt der Technikraum. Die gewendelte Treppe wurde so konstruiert, dass sich in ihrem rechteckigen Winkel später ein Aufzug bauen lässt. Die biologische Mineralputzfassade, die bodentiefen Fenster und ein Zeltdach mit 15 Grad-Neigung geben dem zweigeschossigen Entwurf eine klassische Anmutung, der trotzdem Leichtigkeit ausstrahlt.
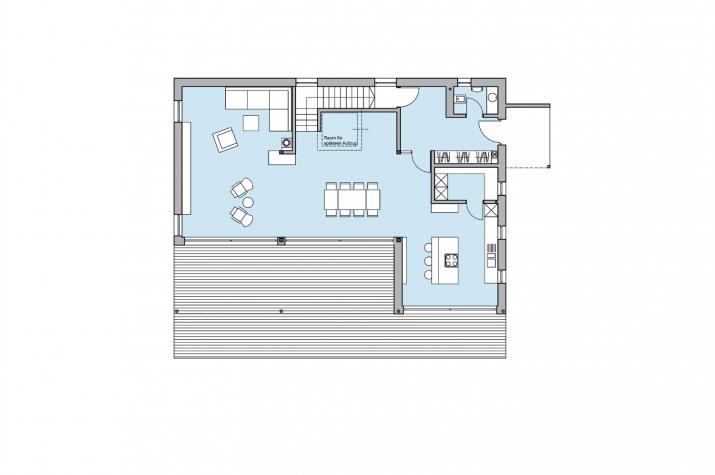
Der zweite Hauseingang liegt an der östlichen Giebelseite. Das über 100 Quadratmeter große, lichtdurchflutete Erdgeschoss nimmt die Bereiche Wohnen, Essen und Kochen auf. Dabei sind sie so weit voneinander entfernt, dass sich die Familienmitglieder bei unterschiedlichen Tätigkeiten nicht stören. Für ein gesundes Raumklima sorgt die ökologische Dämmung aus Holzspänen, die entweder bei der Produktion anfallen oder aus kontrolliertem FSC-zertifiziertem Holzanbau stammen. Zum Gesundheitskonzept gehören lösemittelfreie Innenwandfarben. Fenster und Türen lieferte der Bauherr selbstverständlich selbst. Baufritz baute sie dann so passgenau ein, dass keine gesundheitsgefährdenden PU-Bauschäume und Kleber zum Einsatz kamen.
Auf dem Boden liegen elegante Landhausdielen aus gekalkter Eiche. Eine Sole-Wasser-Wärmepumpe liefert die Energie für die Fußbodenheizung. „Mit einer Vorlauftemperatur von 35 bis 38 Grad ist es im Haus immer konstant 21 bis 22 Grad warm“, schwärmt der Besitzer – bei Jahresheizkosten von 750 Euro!
Die Designer-Haube über der Kochinsel ist ein besonderer Blickfang. Sie
bietet mit ihren LEDs blendfreies Licht und zusätzlich eine Effektbeleuchtung.
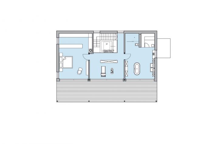
Im Oberschoss liegen das Schlafzimmer mit Ankleide, die Galerie und ein Wellness-Badezimmer mit freistehender Wanne, eine Glasdusche und Baufritz-Sauna. Hebe-Schiebtüren auf der kompletten Hausbreite öffnen das luxuriöse Domizil des Paares zum über 40 Quadratmeter großen Balkon mit unverbaubarem Blick.
Extras und Besonderheiten
Besonderheiten
Großzügiger, überdachter Balkon und Terrasse zur Gartenseite - Privater Zugang zum Haus über die Tiefgarage (UG), welche dem Haus vorgelagert ist, ein "Tunnel" führt in den Keller unter dem Haus, durch welchen man in EG gelangt - Poolanlage im Garten - vorwiegend raumhohe Festverglasungen, Fenstertüren oder Hebe-Schiebe-Türen - Dachuntersicht: Lasierte Kalziumsilikat-Platten mit Baufritz-LED-Beleuchtung - Einstöckiger Anbau im EG
Dämmung und Energiebedarf
biologische Naturdämmung aus Hobelspan - HOIZ - natureplusgeprüft
Anbieterdetails










