Hausbeschreibung
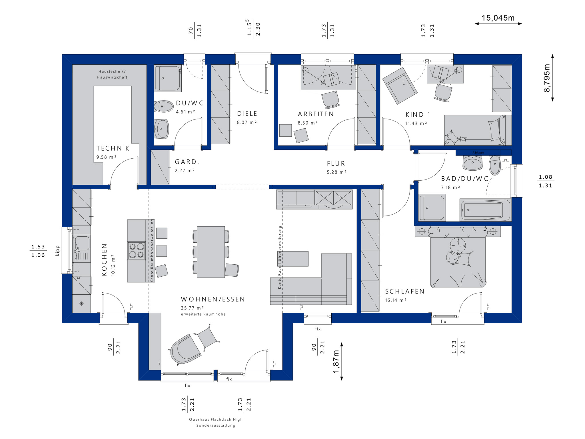
Das AMBIENCE 111 überzeugt sowohl mit seinem wohldurchdachten Grundrisskonzept als auch mit überaus ansprechender Architektur. Als vollwertiges Eigenheim für zwei bis drei Personen glänzt dieser Bungalow mit einem offenen, lichtdurchfluteten Wohnbereich, einer praktischen Diele mit Garderobe, einem zusätzlichen Arbeitszimmer sowie einem separaten Gäste- oder Kinderzimmer mit eigenem Dusch-WC. Durch tolle Erkerlösungen und diverse Architektur-Bauteile werden ganz nach Bedarf noch mehr Wohnraum und eine einladende Terrassensituationen geschaffen.
Alle Grundrissvarianten des AMBIENCE 111 funktionieren ohne Keller. Optional kann allerdings mit einem Untergeschoss Raum für das eigene Hobby oder zusätzlicher Wohn- bzw. Stauraum geschaffen werden. Wird der Technikraum des Bungalows im Untergeschoss platziert, entsteht im Erdgeschoss ein zusätzlicher Abstellraum.
Bauen mit Bien-Zenker
Die fachkundigen Bien-Zenker Hausberaterinnen und Hausberater entwickeln gemeinsam mit Ihnen DAS HAUS als perfekten Mittelpunkt für Ihren Lebensraum und den Ihrer Familie. Ausgehend von Ihren Wünschen bzw. Ihrem favorisierten Planungsvorschlag wählen Sie gemeinsam einen Architekturstil und ein Wohnkonzept. Die individuelle Hausberatung hilft Ihnen bei der flexiblen Grundriss- und Wohnraumgestaltung sowie bei den zahlreichen Entscheidungen zur Innenausstattung. Außerdem bei der Auswahl eines innovativen Energiesparkonzepts mit eigener Photovoltaikanlage, Batterie und der passenden Haus- und Heizungstechnik. Damit leisten Sie einen aktiven Beitrag zum Klimaschutz und können sich von den stetig steigenden Energiepreisen abkoppeln.
Ihr Haus ist rundum nachhaltig, weil Bien-Zenker bevorzugt regionale Rohstoffe einsetzt und so Transportwege spart. Dabei achtet der Fertighaushersteller genauso wie seine ausgewählten Lieferanten auf einen verantwortungsvollen und schonenden Umgang mit natürlichen Ressourcen. Geleitet vom Respekt für die Bedürfnisse kommender Generationen und der Leidenschaft, das für jede Baufamilie individuell passende, zukunftssichere Haus zu bauen, erschafft Bien-Zenker mit Ihnen gemeinsam den idealen neuen Mittelpunkt für Ihren zukünftigen Lebensraum. Für heute. Für die Zukunft. Denn jedes Bien-Zenker Haus ist mit dem Gold-Zertifikat der Deutschen Gesellschaft für Nachhaltiges Bauen – DGNB e.V. ausgezeichnet.
Darüber hinaus bietet Bien-Zenker seinen Bauherren umfangreiche Inklusiv-Leistungen wie Grundstücks-, Finanzierungs- und Architektenservices sowie ein umfassendes PREMIUM-Versicherungspaket. Um Ihr Projekt Hausbau für Sie so einfach und reibungslos wie möglich zu machen, hat Bien-Zenker außerdem als erster Fertighaushersteller eine Bauherren-App entwickelt, mit der Sie alle Unterlagen und die aktuellen Informationen zu Ihrem Bauprojekt immer online greifbar haben.
Für die Qualität und Zukunftsfähigkeit seiner Häuser sowie die Innovationskraft des gesamten Unternehmens wird Bien-Zenker regelmäßig mit renommierten Preisen ausgezeichnet, zum Beispiel als „Fairster Fertighausanbieter“ (FOCUS-MONEY 2021), als „Deutschlands Kundenchampion“ (F.A.Z.-Institut 2024) oder mit dem Plus X Award („Most Innovative Brand“ 2021). Die positiven Erfahrungen unzähliger Bien-Zenker Bauherren sprechen ebenfalls eine deutliche Sprache.
Weitere Informationen erhalten Sie unter: www.bien-zenker.de
Extras und Besonderheiten
Extras
Flachdach mit Attika, Querhaus Flachdach High
Besonderheiten
Jedes Bien-Zenker Haus ab der Ausbaustufe ZAF wird im Gold-Standard der Deutschen Gesellschaft für Nachhaltiges Bauen (DGNB) gebaut und entsprechend zertifiziert.
Dämmung und Energiebedarf
Vom Energiesparhaus bis hin zum Plus-Energie-Haus hat Bien-Zenker Dämmpakete und Heizungsanlagen für Sie zusammengestellt, die den jeweiligen Energiespar-Standards entsprechen und deren Vorgaben meist übertreffen. In Verbindung mit einem der drei Energiesparpakete „Effizienzhaus 55, 40 oder 40 Plus“ sowie entsprechender Wärmedämmung von Bodenplatte bzw. Keller wird Ihr Bien-Zenker Haus als förderfähiges KfW-Effizienzhaus 55, 40 oder 40 Plus ausgeführt.
Bei der Dämmung der Wände, Decken und Dächer verwendet Bien-Zenker eine besonders innovative Mineralwolle mit Ecose-Technologie. Diese wurde bereits mehrfach für ihre Nachhaltigkeit ausgezeichnet: Das Indoor Air Comfort Gold-Zertifikat bestätigt die hervorragenden Produkteigenschaften.
Anbieterdetails







