Hausbeschreibung
Wie man in der Planung eines Hauses ideal architektonischen Anspruch, die Gegebenheiten des Grundstücks und die Bedürfnisse der Bauherren miteinander in Einklang bringt, beweist das Vitalhaus Fabienne – wunderschön gelegen und umsäumt von altem Baumbestand auf einer Anhöhe unweit des Genfer Sees.
Die umliegende Natur ins Haus holen weitläufige Terrassen und ausgesprochen üppige Balkonsituationen, die den Bewohnern zusätzliche Aufenthaltsflächen im Freien zur Verfügung stellen.
Das Flachdach wird besonders betont durch eindrucksvolle Auskragungen. Sie überspannen die umlaufenden Balkone schützend –dieselbe Aufgabe übernehmen die Balkone zum Teil für die Terrassen im EG. Das prägt den Baukörper enorm, unterstützt in aller Deutlichkeit das Design und bietet gleichzeitig Funktionalität.
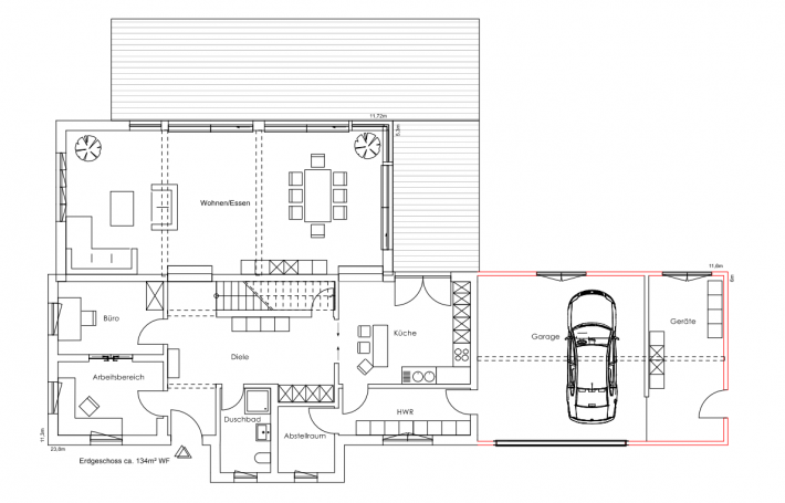
Dass in Regnauer Vitalhäusern Gestaltung und Funktionenvielfalt immer eine gelungene Einheit bilden, macht auch die Grundrissgliederung von Haus Fabienne deutlich: Es beherbergt in seinen vorderen Bereichen im EG und OG die Badezimmer, die jeweils sowohl von der Diele als auch vom Schlafzimmer zu erreichen sind. In den hinteren Bereichen findet das Leben statt. Dabei schafft der langgestreckte Baukörper in allen Räumen attraktive Fenster- und Lichtsituationen.
Als zwei in sich geschlossene und voneinander unabhängige Wohneinheiten ausgelegt, verbinden die Balkone, Außentreppen und Terrassen die beiden Geschosse zu einem wahrhaft idyllischen Zuhause für mehrere Generationen.
Ausführung gemäß aktueller Regnauer Bauleistungs- und Ausstattungsbeschreibung.
Weitere Informationen auf www.regnauer.de. Abbildungen können Sonderausstattung zeigen.
Wir legen großen Wert darauf, Ihr Vitalhaus ganz nach Ihren persönlichen Wünschen zu gestalten. Gemäß Ihren Wünschen und Ihrer Grundstückssituation ergibt sich dann ein exakter Festpreis für Ihr Traumhaus. Daher beziehen sich die Preise auf eine Vitalausstattung ohne spezifische Sonderausstattung..
Anbieterdetails

Weitere Häuser dieses Anbieters
Glonn - Modernes Landleben - Naturnahes Wohnen...
Waakirchen - Architektenhaus: Bodenständig und...
Liesl - Dahoam. Wo alles beginnt.
Breitbrunn - Bauen im Doppelpack









