Hausbeschreibung
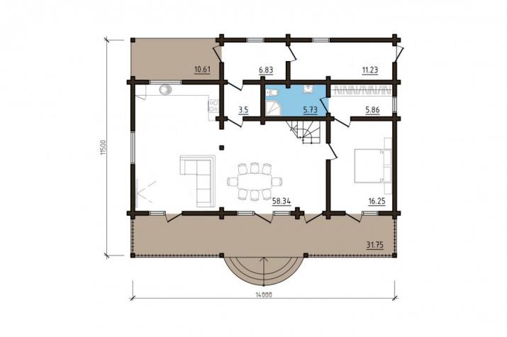
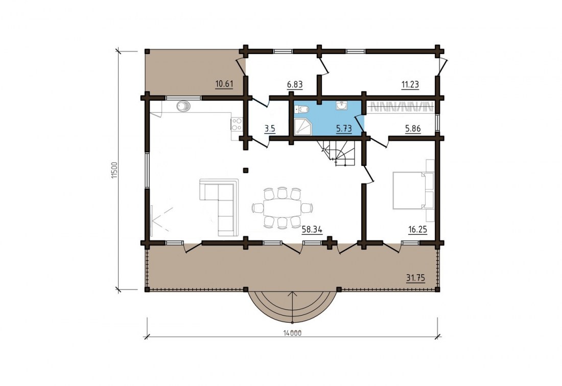
Die erste Etage ist durch eine Eingangshalle und eine Halle mit einer Treppe besetzt, sowie eine einzelne Einheit Wohnzimmer, Esszimmer und Küche, wo man auf die Terrasse gehen kann. Auf der zweiten Etage sind die Schlafzimmer. Die Spezifität der Organisation des Raumes ist, dass das Haus viel Nebengebäude bietet: Keller, Heizung, ein geräumiges Ankleidezimmer.
Anbieterdetails

74.382 mal angesehen
Ihr Ansprechpartner
Doga Ziaev
+375298060567
Weitere Häuser dieses Anbieters
Ähnliche Häuser
Holzhaus "White House" wird auf folgenden Seiten gelistet:
EinfamilienhausZweifamilienhausLandhausLuxushausHolzhausDesignerhausBlockhausSchwedenhausFertighäuser bis 200.000 €Einfamilienhaus bis 300 m² bis 250.000 € (Fertighaus)Einfamilienhaus bis 200 m² bis 300.000 € (Fertighaus)Einfamilienhaus bis 250 m² bis 300.000 € (Fertighaus)Einfamilienhaus bis 300 m² bis 300.000 € (Fertighaus)Einfamilienhaus bis 400.000 € (Fertighaus)Einfamilienhaus ab 25.000 € (Fertighaus)Einfamilienhaus ab 75.000 € (Fertighaus)Holzhaus bis 200 m² bis 200.000 € (Fertighaus)Holzhaus ab 50.000 € (Fertighaus)Holzhaus ab 100.000 € (Fertighaus)Luxushaus bis 200 m² bis 300.000 € (Fertighaus)Luxushaus bis 400.000 € (Fertighaus)Luxushaus bis 750.000 € (Fertighaus)Einfamilienhaus bis 200.000 € (Ausbauhaus)Einfamilienhaus bis 300.000 € (Ausbauhaus)Holzhaus ab 50.000 € (Ausbauhaus)










