Hausbeschreibung
Das Geheimnis dieses Gartenhauses liegt in der Verwendung der belarussischen Kiefer: das Holz speichert die aufgenommene Hitze optimal in den verleimten Blockbohlen und gibt sie bei geringer Oberflächenhitze gleichmäßig wieder ab. Sie bekommen Ihr ganz privates Wellness-Zentrum in Ihren Garten, das Ausgeglichenheit und Erholung für den Körper und die Seele bietet, wenn Sie sich Zeit für sich selbst nehmen.
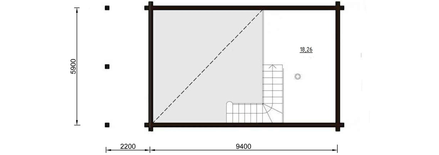
Psychologen sind sich sicher, dass einer der wichtigsten Faktoren für das Wohlbefinden und die Lebensfreude unser soziales Umfeld ist. Dank dem Gartenhaus mit Sauna haben Sie die Möglichkeit Ihre Freundschaften zu pflegen, ohne in Ihre Privatsphäre gestört zu werden. Im Obergeschoss des Hauses befindet sich ein Gästezimmer, wo Sie Ihre Gäste nach dem gemeinsamen Spass und einem offenen Gespräch komfortabel unterbringen können.
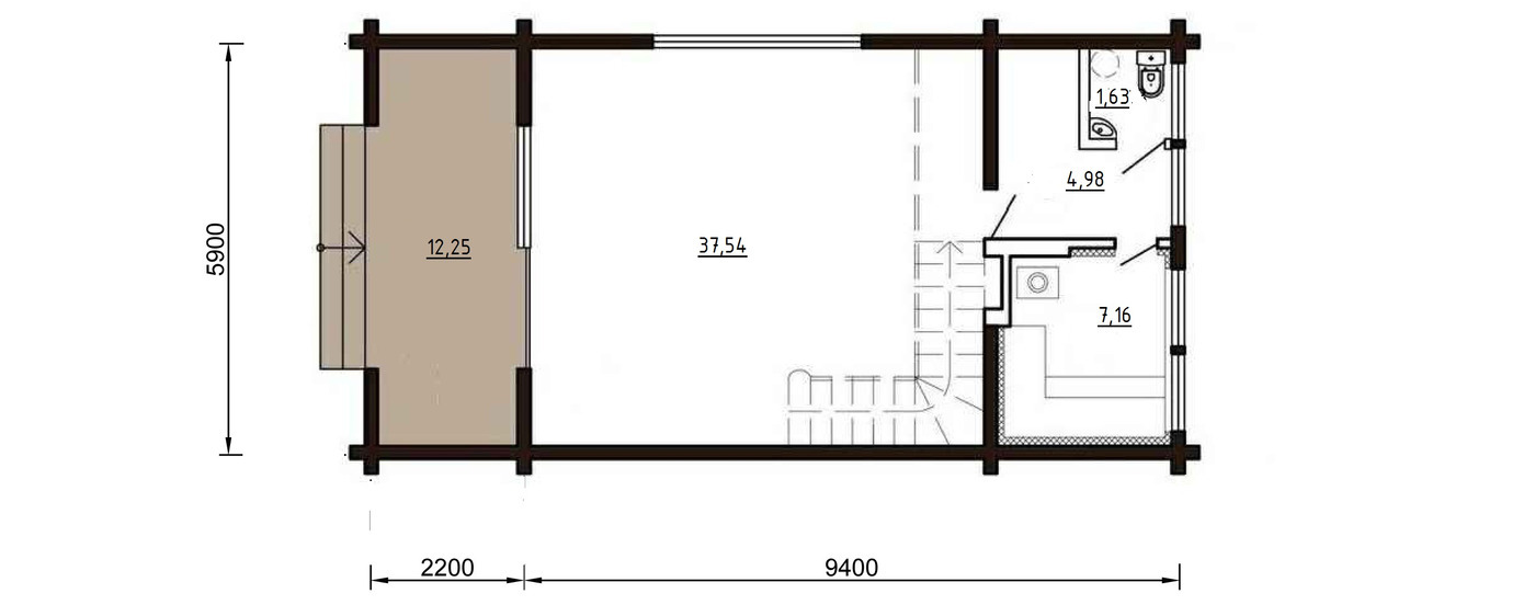
Das Gartenhaus mit Sauna "Donau" wurde aus 180 mm verleimten Balken mit Nut und Feder in Deutschland aufgebaut. Die Archiline OOO bietet zu günstigen Preisen Außensaunas und traditionelle russische Banjas, wie zum Beispiel die Blockbohlen-Außensauna und die Rundholz-Außensauna an. Jedes Haus ist nach den Wünschen der KÄufer veränderbar. Lassen Sie sich über die unbegrenzten Möglichkeiten (zur Maßanfertigung) informieren und genießen Sie das Schwitz-Erlebnis im Grünen!
Extras und Besonderheiten
Extras
Laminierte Holzblocken 200mm. Triple Glass. Laminierte Fensterrahmen. EU Zertifikat.
Anbieterdetails


















