Massiv-Hausidee ZH 185 M | BAUDIREKT GmbH
Zurück
Massiv-Hausidee ZH 185 M - Massiv-Hausidee ZH 185 M1 / 3
  • Massiv-Hausidee ZH 185 M - Massiv-Hausidee ZH 185 M
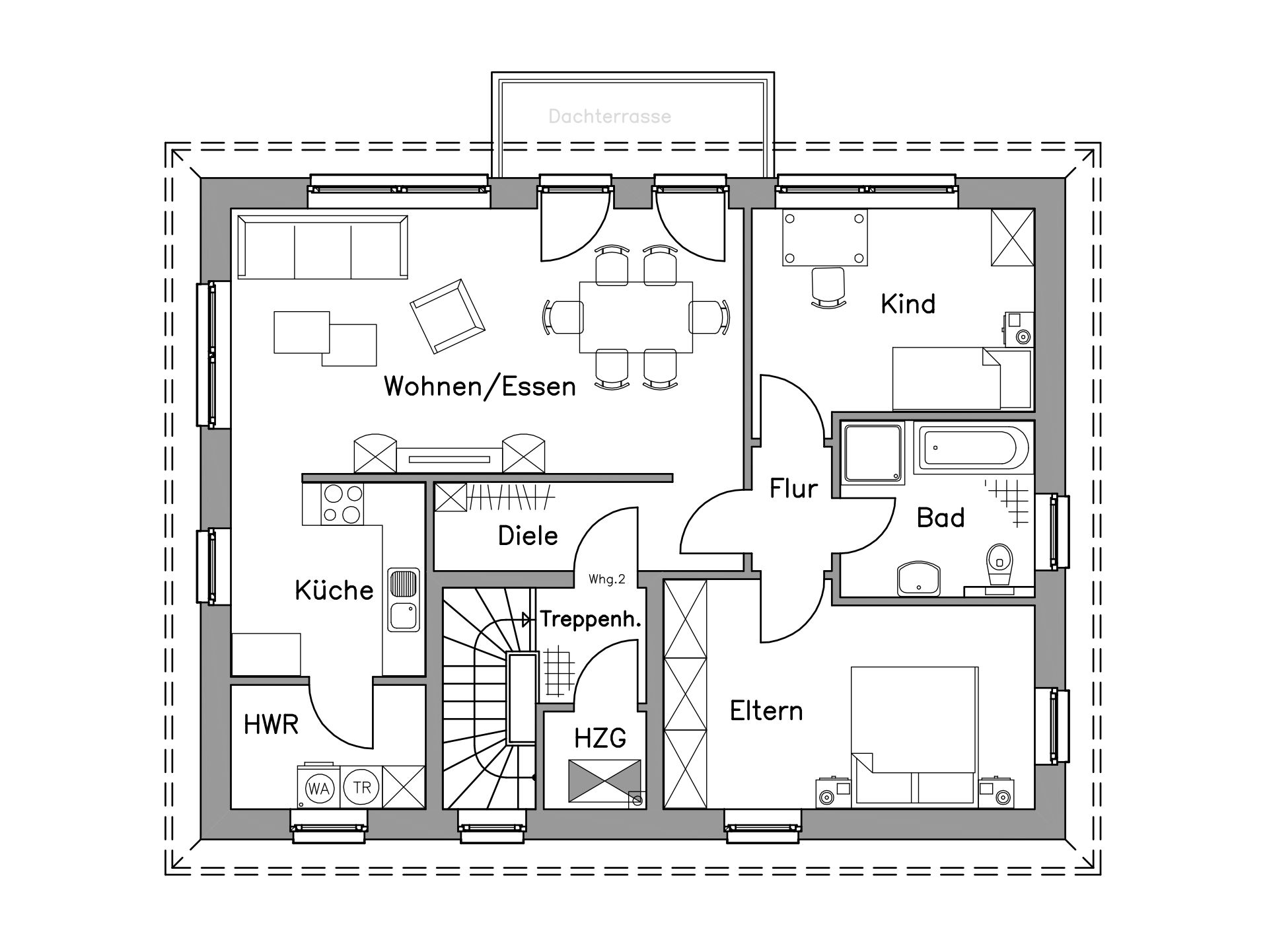
  • Massiv-Hausidee ZH 185 M - EG-Grundriss ZH 185 M
  • Massiv-Hausidee ZH 185 M - OG-Grundriss ZH 185 M

Grundrisse

Massiv-Hausidee ZH 185 M - EG-Grundriss ZH 185 M1 / 2
  • Massiv-Hausidee ZH 185 M - EG-Grundriss ZH 185 M
  • Massiv-Hausidee ZH 185 M - OG-Grundriss ZH 185 M

Hausbeschreibung

Ob Großfamilie, mehrere Generationen oder nette Mieter, in der Hausidee ZH 185 finden alle ausreichend Platz - unter einem Dach. Durch die beiden gleichwertigen Grundrisse mit insgesamt rund 185 m² Wohngrundfläche wird das Wohnen im Erd- wie auch im Dachgeschoss zu etwas ganz Besonderem.

Mehr Massiv-Hausideen finden Sie unter www.baudirekt.de

Sonstiges

Der Baupreis ist abhängig vom Bauort. Die Preisliste für Ihre Region erhalten Sie mit dem Baudirekt-Hauskatalog zugesandt.

Extras und Besonderheiten

Extras

Wahlweise (preisgleich) inklusive Luft-/Wasserwärmepumpe, Fußbodenheizung, Feuchtraumentlüfter oder Gas-Brennwerttherme und zentrale Be- und Entlüftungsanlage mit Wärmerückgewinnung. Auch als KfW-Effizienzhaus 55 möglich (Preis siehe www.baudirekt.de).

Besonderheiten

Bei Baudirekt gilt ein Grundsatz: Sie zahlen nur nach erbrachter (Bau-)Leistung. Dazu steht Ihnen ein Bauleiter zur Seite, der in Ihrem Sinne die Bauleistung der Handwerker überprüft. Nur nach seinem fachmännischen Urteil zahlen Sie ohne Umwege direkt auf die Konten der Handwerksunternehmen - Ihr Geld kommt da an, wo es hingehört.

Erst gebaut, dann bezahlt: Also keinen Cent zu früh oder zu viel, das macht den Einzug in Ihr Haus sicher - das garantieren wir!

- Massivbauweise (Stein auf Stein gemauert)
- Zahlung erst nach erbrachter Bauleistung direkt auf die Konten der Handwerker (Erst gebaut, dann bezahlt!)
- Baugewährleistungs-Versicherung (Versicherungssumme bis 150.000,- Euro)
- Baubegleitendes Qualitätscontrolling durch TÜV-SÜD
- Baugrundgutachten
- unabhängige Bauleitung
- SiGeKo für die Sicherheit auf der Baustelle
- EnEV-Sachverständigengutachten und -bescheinigung
- freie Wahl der Baustoffe, der Technik und der Ausstattung
- höchstmögliche Flexibilität, wenn es um Ihre Wünsche geht
- bestmögliche, transparente Baupreise durch Handwerkerausschreibung
- regionale Handwerker
- qualitätsgeprüfte Handwerkerleistungen
- 30 Jahre Bauerfahrung im Unternehmensverbund

Weitere Infos finden Sie unter www.baudirekt.de

Selbstverständlich inklusive sind:

die Hausplanung mit
- Architektur
- Statik
- Bauantragsplanung
- Bauleitung
- Planung und Ausführung gemäß neuester EnEV und EEWärmeG

der Rohbau mit
- Erdarbeiten, Gebäudeentwässerung
- Fundamenten, Sohlplatte
- Maurer- und Stahlbetonarbeiten
- Zimmerer-, Dachdecker-, Klempnerarbeiten
- Betondecke (außer bei Bungalows und 2. Decke bei 2-geschossiger Bauweise)
- Putzfassade mit Wärmedämmverbundsystem

der Innenausbau mit
- kompletter Elektroinstallation
- kompletter Heizungs- und Sanitärinstallation (inkl. Brennwertherme)
- Badewanne und Dusche
- wandhängendem WC
- Kunststofffenster und Außentüren
- Schwimmenden Estrich mit Wärme-Trittschall-Dämmung
- Innenputz und Trockenausbau
- Fliesenarbeiten im Bad, WC und Küche
- Bodeneinschubtreppe
- Innentüren
- Vollholzwangentreppe

Anbieterdetails

BAUDIREKT GmbH
79.921 mal angesehen
BAUDIREKT GmbH
Moorgärten 12-14
49377 Vechta
Ihre Ansprechpartnerin
Kirsten Middelkamp-Elberfeld
0800 800 2412

Weitere Häuser dieses Anbieters

 Massiv-Hausidee EH 125 Basis
auf Anfrage

Massiv-Hausidee EH 125 Basis

120 m² 
4

BAUDIREKT GmbH

BAUDIREKT GmbH
Details
 Massiv-Hausidee DH 110 M
auf Anfrage

Massiv-Hausidee DH 110 M

111 m² 
4

BAUDIREKT GmbH

BAUDIREKT GmbH
Details
 Massiv-Hausidee SV 140 K
auf Anfrage

Massiv-Hausidee SV 140 K

141 m² 
6

BAUDIREKT GmbH

BAUDIREKT GmbH
Details
 Massiv-Hausidee SV 140 M
auf Anfrage

Massiv-Hausidee SV 140 M

178 m² 
5

BAUDIREKT GmbH

BAUDIREKT GmbH
Details

Ähnliche Häuser

Massiv-Hausidee ZH 185 M wird auf folgenden Seiten gelistet:

Jetzt kostenlos und unverbindlich Hauskataloge verschiedener Baufirmen anfordern und viele Angebote bequem auf der Couch vergleichen

Gratis Kataloge anfordern