Hausbeschreibung
Moderne trifft Natur
Dieser modern geplante Bungalow liegt an einem See, nahe einer Großstadt.
Hier genießen die Bauherren gerne ihren Urlaub und irgendwann vielleicht ihre späten Jahre.
Das Traumgrundstück und die Wünsche der Bauherrschaft verlangten nach einer ebenso zeitlosen wie außergewöhnlichen Architektur. Klare Linien und keine Kompromisse, das sollte ihr Haus vereinen.
Gelungen umgesetzt wurde das in Form eines bisher oft nachlässig behandelten Baukörpers: des Bungalows. Hier gelangt er zur optischen Höchstform mit schnörkellosem Design, filigraner Holzfassade, abgestimmten, modernen Details und modernem Flachdach. Zur Straßenseite hin sehr geschlossen, überrascht er mit Transparenz zur Seeseite.
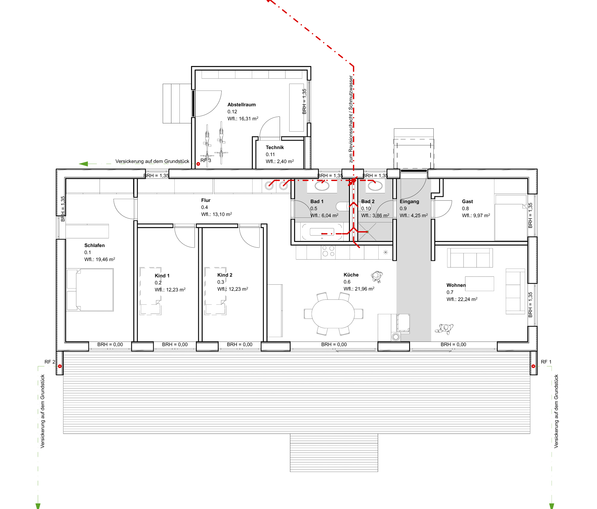
Der Gemeinschaftsteil des Hauses – Koch-, Wohn-, Essbereich, Terrasse und Garten ist demonstrativ offen und einladend gehalten. Gäste sind hier herzlich willkommen und neben dem Eingangsbereich bietet sich ihnen sogar eine eigene Schlafmöglichkeit. Die Bauherren haben die anderen Räume (drei weitere Schlafzimmer und Badezimmer) so angeordnet, dass ein separater Bereich entsteht, der ganz für die eigene Familie da ist. Vom Kamin, der Ess- und Wohnbereich leicht voneinander abschirmt, der großzügigen Sonnenterrasse und der hochwertigen Ausstattung lässt es keine Wünsche offen.
Harmonisch an den Hauptbaukörper gliedern sich zudem ein Carport sowie ein praktischer Geräte- und Technikraum.
Auch aus bautechnischer und – biologischer Sicht überzeugt dieses Hauskonzept: Der Bungalow ist in ökologischer Holzbauweise gefertigt und schafft eine Symbiose aus ganzheitlichem Wohnanspruch und technischem Komfort. So erzielt dieses Energie-Effizienzhaus mit seinen 37 cm starken Wänden – dafür werden ausschließlich schadstoffgeprüfte Materialien verwendet – ausgestattet mit einer Pelletheizung und Kaminofen, niedrigste Heizkosten. Die ökologische Dämmung aus Holz sowie eine „serienmäßige“ Elektrosmogschutzplatte runden das Konzept ab.
Zudem bewirkt seine Naturbauweise eine Reduktion von 40 Tonnen CO2 und leistet somit einen aktiven Beitrag zum Klimaschutz.
Extras und Besonderheiten
Besonderheiten
Besonderheiten Außen:
schöne Lage direkt am See, Haus öffnet sich zur Seeseite, schön gestalteter
Eingangsbereich mit filigraner Überdachung, großzügige (19,7 x 3,5 m)
Holzterrasse mit Blick zum See, praktisches Carport mit Pultdach, Abstellraum mit
Technikraum (separat begehbar), beide (Carport und Abstellraum) gliedern sich
optisch hervoragend an den eigentlichen Baukörper
Besonderheiten Innen:
Geschosshöhe von fast 3 m, offene Raumgestaltung, Trennung des Ess- und
Wohnbereiches mit schönem Kamin, Fußboden: Bad + Küche Fliesen, ansonsten
hochwertiger 3Stab-Schiffsboden in Buche, praktische Grundrissplanung inkl.
Gäste-WC, Gästezimmer, offenem Koch-Ess und Wohnbereich, 3 Schlafzimmer,
Badezimmer, Geräte- und Technikraum
Dämmung und Energiebedarf
biologische Naturdämmung aus Hobelspan - HOIZ - natureplusgeprüf
Anbieterdetails







