Hausbeschreibung
Auf das Wesentliche konzentriert: Bungalow für zwei
Wie viele Quadratmeter benötigt man wirklich, um sich wohlzufühlen? Für die Bauherren dieses Bungalows war von vornherein klar, dass sie keine überdimensionierte Villa brauchen. Anhänger der Minimalisten-Bewegung machen es vor, die Baufritz-Planer nach und mit viel Gespür für gute Details und wertvollen Erfahrungswerten finden sämtliche Wohnwünsche der Bauherren auf knappen 105 m² ausreichend Platz. Ganz bewusst plante das Paar sein neues Domizil ohne Keller – hier würden sich ohnehin nur unnötige Dinge ansammeln.
Freiräume schaffen
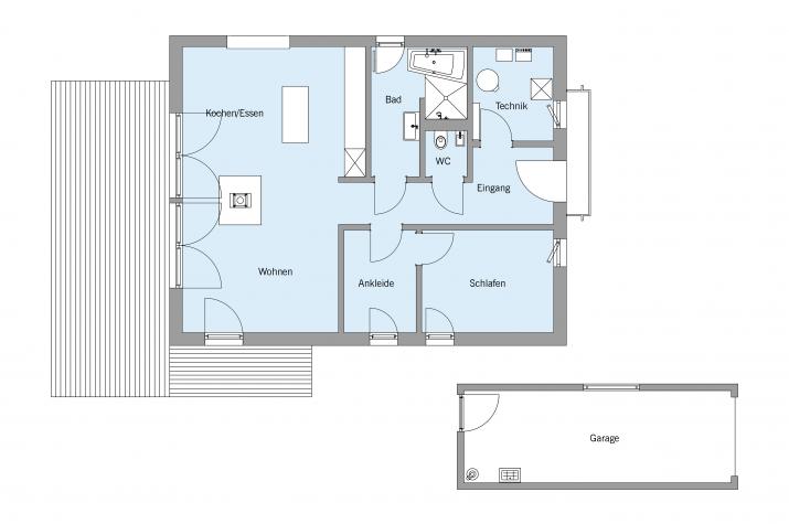
Sich auf das Wesentliche zu reduzieren, bedeutet nicht, dass man auf Wohnkomfort verzichten muss. Denn mit einer cleveren Grundrissaufteilung lassen sich auch auf wenigen Quadratmetern großzügige Freiräume schaffen. Jede Ecke des Bungalows wird perfekt ausgenutzt. Damit die Wohnräume möglichst weitläufig dimensioniert werden konnten, beschränkte man sich hinsichtlich der Verkehrsflächen auf das Notwendige. Rechts an die Diele schließen sich der Technikraum und das Bad an. Eine schöne und praktische Lösung ist das separate WC – für Bewohner und Gäste. Das Badezimmer bleibt so als private Wellnessoase den Hausbewohnern vorbehalten. Links geht es in das Schlafzimmer mit vorgelagerter Ankleide. Geradeaus mündet die Diele in den offen angelegten Wohn-, Ess- und Kochbereich, der durch eine lange Fensterfront an Größe gewinnt und mit herrlichen Ausblicken in die Natur verwöhnt. Im Sommer können die Fenster weit geöffnet werden, sodass ein fließender Übergang zur Terrasse und zum inspirierenden Naturgarten entsteht. Absolutes Highlight ist der mittig platzierte Kaminofen, der sich um 360 Grad schwenken lässt. Ob beim Entspannen auf der weichen Couch, beim Musikhören auf dem gemütlichen Relaxsessel, in geselliger Runde am einladenden Esstisch oder bei Lesen am gemütlichen Sitzfenster – die Bewohner können das romantische Flammenspiel von jedem Winkel aus genießen. Eine weitere Besonderheit ist die lichtdurchflutete Galerie, die über eine elegante Faltwerktreppe erschlossen wird. Auch hier bleibt kein Quadratmeter ungenutzt, denn der Raum unter der Treppe dient gleichzeitig als Regal. Oben hat sich das Paar auf 24 m² ein schickes Büro eingerichtet. Außerdem findet das geliebte Rennrad hier seinen Aufbewahrungsplatz – was absolut nicht im Kontrast zum gemütlichen und aufgeräumten Wohnambiente steht. Denn durch seine perfektionierte Geometrie und die knallige Farbgebung wird das Fahrrad ungeplant, dafür aber sehr wohl gekonnte zum ansprechenden Designobjekt und Blickfang für alle Kenner.
Im Einklang mit der Natur
Passend zum naturnah gestalteten Garten hüllt sich der Bungalow in eine silbergraue Fichtenholzverschalung, die auf der Eingangsseite mit einem biologischen Mineralputz in Weiß kombiniert wurde. Den oberen Abschluss bildet ein dunkel eingedecktes Satteldach. Harmonisch fügt sich die Garage mit begrüntem Dach in das Gesamtbild ein.
Wie alle Baufritz-Häuser besteht auch der Bungalow Bieker ausschließlich schadstoffgeprüften, wohngesunden Materialien. Allen voran der Naturbaustoff Holz, der nicht nur für die Konstruktion, sondern in Form von Hobelspänen auch für die Dämmung zum Einsatz kommt. Ergänzt von einer baubiologisch einwandfreien Innenausstattung sowie einem Bio-Licht-Konzept entsteht im Innern des Hauses ein besonders angenehmes Wohlfühlambiente.
Extras und Besonderheiten
Besonderheiten
Besonderheiten Außen:
Einfacher Baukörper mit weitem Satteldach; L-förmiges Eingangsmodul; Reduktion
aufs Wesentiche; zur Straßenseite hin eher geschlossen, öffnet sich das Haus zum
Garten; Der Garten ist naturnah gestaltet; die Wegeführung ist organisch und natürlich
angelegt; Große Sonnenterrasse inkl. Chillout-Lounge
Besonderheiten Innen:
offen realisierter Wohn-, Ess- und Kochbereich mit hohen Decken - bis unter das Dach;
großzügige Fensterfront, die dem Raum Größe schenkt und ihn mit Licht durchflutet;
gemütliches Sitzfenster im Essbereich bietet einen wunderschönen Ausblick in den
Garten; vom Wohnraum führt eine elegante Faltwerktreppe auf eine Galerie, welche
als Office genutz wird; der Raum unter der Treppe wird platzsparend zum Stauraum
und als Regal genutzt; eine weitere Besonderheit ist der um 360 Grad schwenkbare
Kaminofen; das Schlafzimmer verfügt über eine vorgelagerte Ankleide; das WC wurde
separat gepant, sodass die Nutzung des Badezimmers, ganz diskret, den Bewohnern
vorbehalten bleibt
Dämmung und Energiebedarf
biologische Naturdämmung aus Hobelspan - HOIZ - natureplusgeprüft, IBN- und
Cradle to Cradle-zertifiziert
Anbieterdetails








