Hausbeschreibung
An alles gedacht
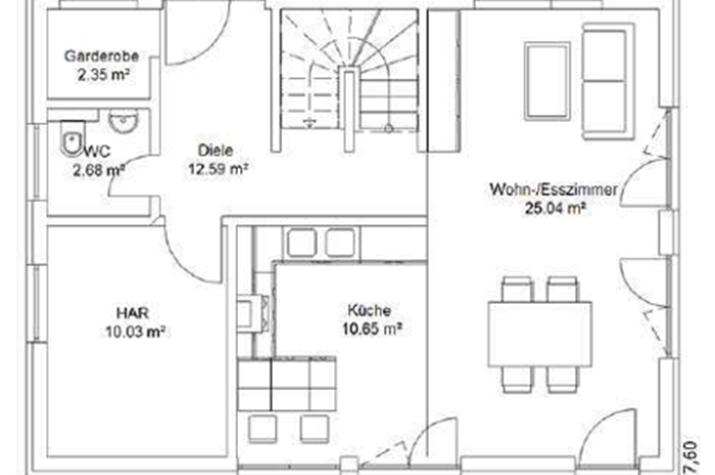
Mit seiner cleveren Aufteilung bietet das Vielseitige 125 alles, was eine Familie braucht: Im Erdgeschoss laden 36m² zum entspannten Wohnen, Kochen und Essen ein. Neben Garderobe und Gäste-WC ist sogar noch Platz für einen praktischen Hauswirtschaftsraum. Das Dachgeschoss beherbergt – jeweils in angenehmer Größe – das Elternschlafzimmer, zwei Kinderzimmer und ein schönes Bad. Durch mehrere bodentiefe Fenster kommt in beide Geschosse reichlich Licht. So lässt sich‘s gut leben!
Enovia Haus ist so einzigartig wie du selbst! Wir sind eine innovative Fertighausfirma, die sich durch die maßgeschneiderte Gestaltung von Wohnräumen hervorhebt. Im Gegensatz zu herkömmlichen Anbietern, die oft in starren, standardisierten Mustern denken, bieten wir dir die Freiheit, dein Zuhause individuell zu gestalten. Jedes Haus wird nach deinen spezifischen Bedürfnissen und Wünschen, soweit es möglich ist, entworfen – und das ist nicht nur ein Versprechen, sondern unser leidenschaftlicher Anspruch. Stell dir vor, wie es sich anfühlt, in einem Zuhause zu leben, das nicht nur aus Wänden und einem Dach besteht, sondern ein wahrer Ausdruck deiner Persönlichkeit ist. Warum solltest du dich mit Massenware zufriedengeben, wenn du die Möglichkeit hast, dein Traumhaus zu verwirklichen? Lass uns gemeinsam dieses visionäre Projekt starten und das Haus erschaffen, dass du immer wolltest. Dein Traumhaus wartet auf dich bei Enovia Haus – lass uns gemeinsam den ersten Schritt machen!
Unsere Hochwertigen Enovia Energieeffizienzhäuser sind die Antwort auf die Herausforderungen von heute und die Bedürfnisse von morgen. Warum sollten Sie sich mit weniger zufrieden geben, wenn Sie in einem Zuhause leben können, das höchste Qualität mit einem exzellenten Standard vereint? Diese Häuser sind nicht nur ein Zeichen für Ihr Engagement für die Umwelt; sie verkörpern auch die Zukunft des Wohnens. Jedes unserer Häuser wird in energieeffizienter Holzständerbauweise gefertigt – eine Technik, die nicht nur die Umwelt schont, sondern auch erstklassige Dämmwerte bietet. Stellen Sie sich vor, wie behaglich es in einem Raum ist, der mit modernster Technologie ausgestattet ist. Unsere Standardausstattung beinhaltet hochmoderne Wärmepumpen, die Ihre Energiekosten drastisch senken, sowie Fußbodenheizungen, die jeden Schritt zu einem Genuss machen. Die Lüftungsanlagen mit Wärmerückgewinnung sorgen für ein gesundes, frisches Raumklima, das Sie und Ihre Familie verdienen. Bieten Sie sich selbst und Ihren Liebsten die Lebensqualität, die sie verdienen. Investieren Sie in unsere Enovia Energieeffizienzhäuser – für ein Zuhause, das nicht nur Schutz bietet, sondern auch ein Gefühl von Wohlbefinden, Sicherheit und Zuversicht schafft. Entscheiden Sie sich für die Zukunft des Wohnens. Sie haben die Wahl – setzen Sie auf Qualität, Energieeffizienz und Ihr eigenes Wohlbefinden!
Sonstiges
Ein herausragendes Merkmal von Enovia Haus ist unsere transparente Kostenstruktur, die dir eine Festpreisgarantie bietet. Von der ersten Minute an weißt du ganz genau, welche finanziellen Verpflichtungen auf dich zukommen. So schaffst du dir ein Gefühl von Sicherheit und Vertrauen, das während des gesamten Bauprozesses unverzichtbar ist. Lass uns diesen Weg gemeinsam gehen – denn mit uns wird der Bau deines neuen Zuhauses nicht nur planbar, sondern auch stressfrei und vertrauensvoll. Entscheide dich für Enovia Haus, um deine Träume ohne unliebsame Überraschungen zu verwirklichen!
Extras und Besonderheiten
Extras
Dank unserer hochgradig effektiven Bauweise mit vorgefertigten Elementen bieten wir dir nicht nur kürzere Bauzeiten, sondern garantieren auch eine beeindruckende Präzision bei der Umsetzung deiner einzigartigen Bauprojekte. Entscheidungen, die dein Lebensumfeld prägen, verdienen nichts weniger als ein Maximum an Effizienz und Genauigkeit! Vertraue auf unsere Expertise – jeder Tag zählt, und wir machen deine Visionen in Rekordzeit zur Realität. Lass uns gemeinsam die Grundlage für dein perfektes Zuhause schaffen und dabei stets auf höchste Qualität setzen. Überzeuge dich selbst und erlebe, wie wir deine Wünsche mit unübertroffener Präzision in die Tat umsetzen! Dein Traumhaus wartet – lass uns gemeinsam starten!
Besonderheiten
Entscheide dich für Enovia Haus und erlebe die Zukunft des Wohnens! Mit unseren individuell geplanten, hochwertigen und energieeffizienten Fertighäusern bringst du nicht nur Stil und Komfort in dein Leben, sondern triffst auch eine kluge finanzielle Entscheidung. Unsere Preise sind konkurrenzfähig im Vergleich zu herkömmlichen Typenhäusern, und das bedeutet, dass du kein Vermögen ausgeben musst, um deine Wohnträume zu verwirklichen. Von der ersten Idee bis hin zur Schlüsselübergabe stehen wir dir mit Fachkompetenz und Hingabe zur Seite. Jeder Schritt ist durchdacht und darauf ausgelegt, dir einen reibungslosen und stressfreien Bauprozess zu garantieren. Du verdienst es, dein Traumhaus ohne Komplikationen zu realisieren – und genau das bieten wir dir. Zögere nicht! Lass uns gemeinsam dein perfektes Zuhause erschaffen. Es ist der richtige Zeitpunkt, um den ersten Schritt in eine neue, aufregende Wohnwelt zu wagen. Wähle Enovia Haus, denn dein Traumhaus wartet auf dich!
Anbieterdetails






