Musterhaus Sachsenheim (Baden-Wuerttemberg)
Adresse
Rossäcker 1674343 Sachsenheim
Öffnungszeiten
Besichtigungstermine nach telefonischer Absprache.Hausbeschreibung
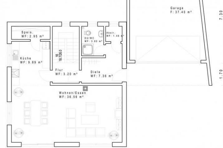
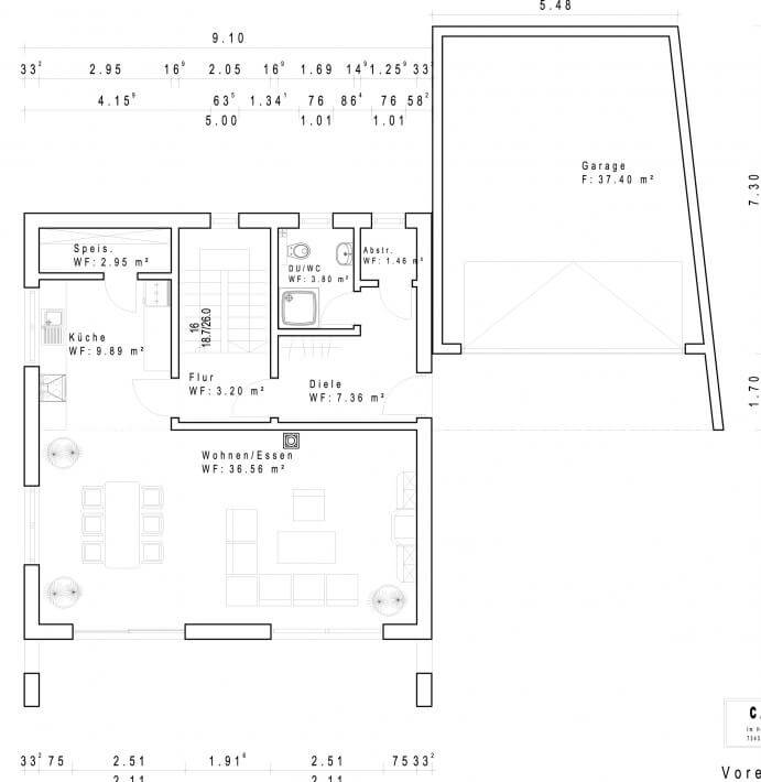
Kurzübersicht
Architektenleistung inkl. Statik
Außenwände U-Wert 0,12 374 mm
Innenwände tragend (nichtragend) 169 mm (149 mm)
Decke Rohbau 262 mm
Konstruktion aus KVH® – Holz und Leimbindern
Pultdach mit Harzer Pfanne Big/Frankfurter Pfanne
Dachverlängerung mit seitl. Einfassungswänden
Garage, Eingangsüberdachung mit elektr. Sektionaltor
Kunststoff – Haustüre mit Alufüllung, Edelstahlgriff
Söba Energeto 3D Fenster passivhaustauglich mit
3 - Fach Verglasung Ug-Wert 0,6, Fenstergesamt Uw-Wert 0,8
Wärmegedämmte Alurollläden
Außenfensterbänke Alu
Dachentwässerung Titanzink oder Kunststoff
Nano – Außenputz weiß oder farbig
Elektrik inkl. Zählerschrank
Gastherme Vaillant/Wolf mit Solaranlage für Brauchwasser/Heizung
300 l Pufferspeicher
Anhydrit Fließestrich
Fußbodenheizung raumgesteuert EG und OG
Gäste WC und Bad mit bodentiefer Echtglasdusche
Malerfertiger Trockenbau
Malerarbeiten, Rauhfaser weiß deckend
Fliesen verlegen im Gäste-WC, Flur EG, Küche, Bad
Laminat verlegen im Wohnzimmer, Büro, OG außer Bad
Innenfensterbänke Werzalit
CPL Innentüren, Buche Treppe massiv
4 Rauchmelder
Keller/Bodenplattenabdichtung „Safety“
Blower Door Test
Sonstiges
Sie wollen kein o815 - Haus von der Stange ?Ein frei geplantes Architektenhaus nach ihren Vorstellungen ? OHNE Aufpreis !!Sie wollen keine "ab" Preise sondern einzugsfertig ?Sie wollen Preise UND Baubeschreibungen sehen ?Sie wollen kein Hausbild sehen mit "Bild kann Sonderausstattungenthalten"= AufpreisSie wollen Grundrissänderungen, freie Planungen ohne Aufpreis?Sie wollen eine Bemusterung VOR Hausvertrag ? Einfach auf Hauskonfigurator gehen dann sind Sie bei uns richtig !
Anbieterdetails






