Hausbeschreibung
Kleineres Cottage mit oder ohne Garage. Auch mit Doppelgarage.
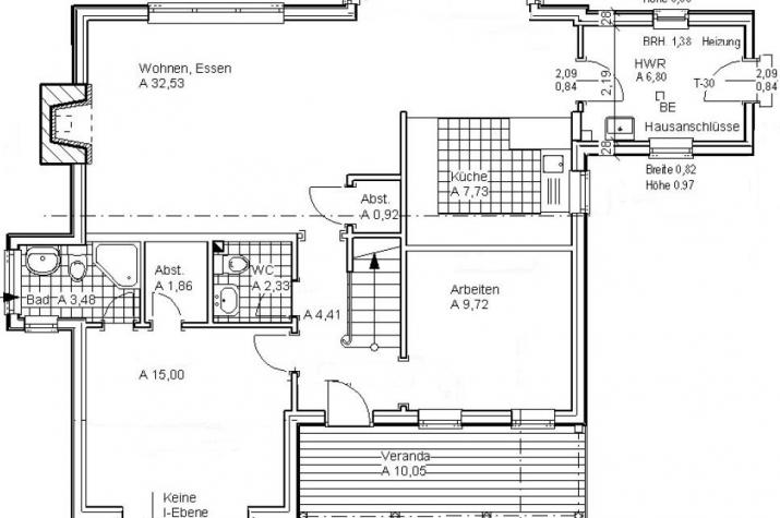
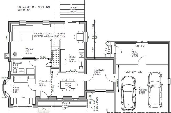
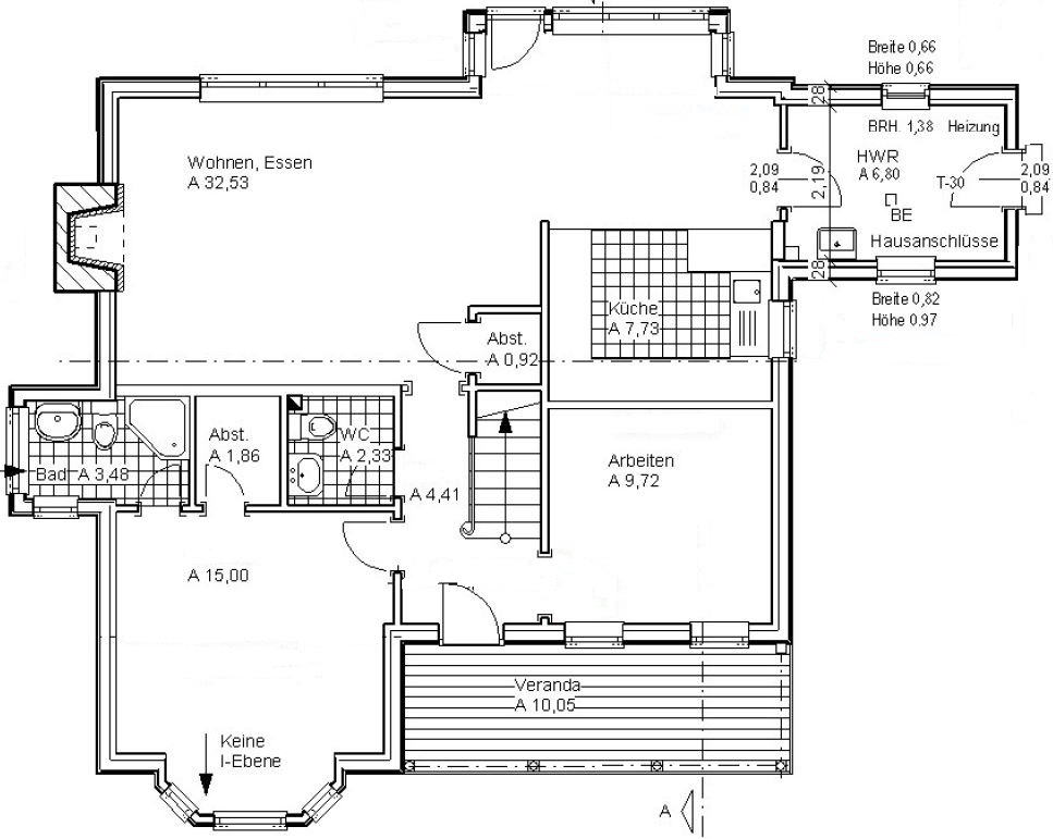
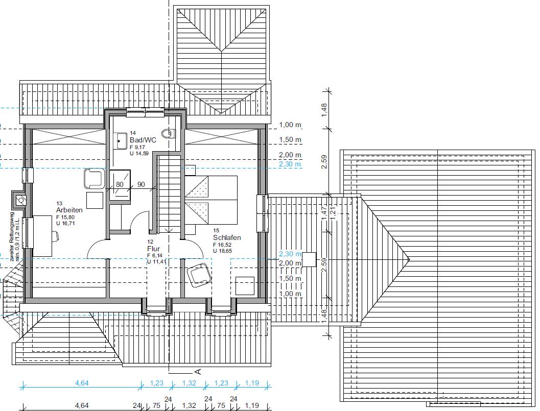
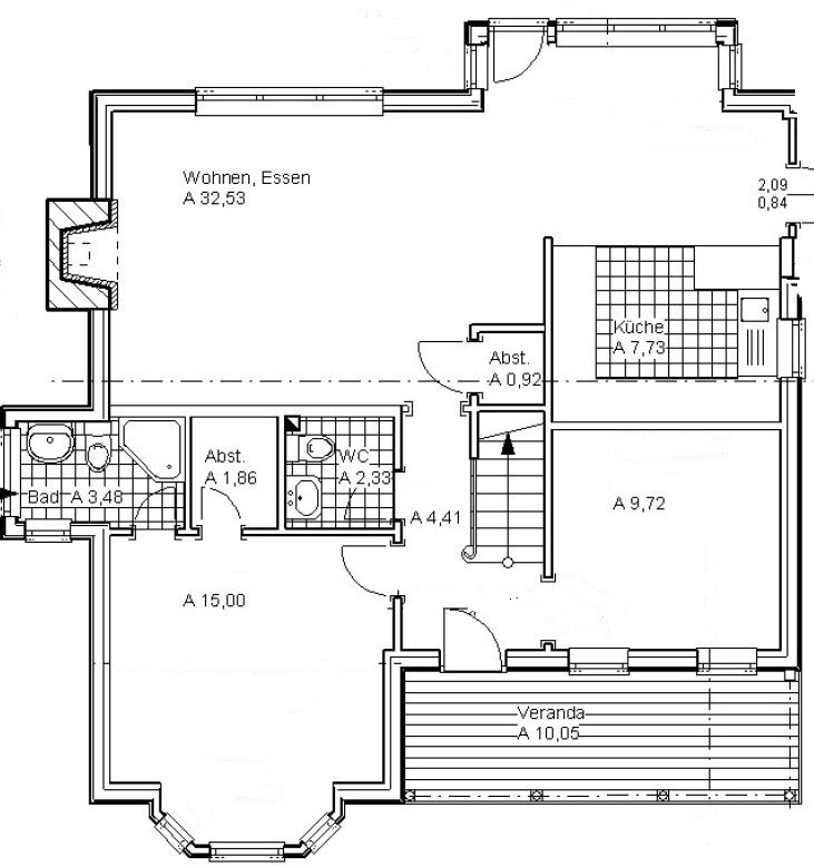
1 Porch [Veranda], 2 Gauben [auch eine auf Frontseite!]. 2 Ziergiebel, 2 Erker. Master Bedroom altersgerecht im EG. 20 Fenster & Türelemente mit Sprossen. Fliegengitter und Zierfensterläden. 3 Wandschränke, 2 Kammern. 2 ½ Bäder. Klassische Treppe mit Garderoben-Kammer darunter [ab komplett ausgebaut]. Office / Büro mit separatem Zugang möglich.
Inkl. Nutzflächen 137 m²
Sonstiges
Mit separatem HWR und Garage / Doppelgarage möglichsiehe Grundriss-AlternativenBLAND DG und BLAND S DG wurden von TWH in SH erbaut
Extras und Besonderheiten
Besonderheiten
INKLUSIVE
Bausatz RAL-zertifiziert aus Deutschland inkl. Installationsebene im Bereich Außenwände
1 Porch [Veranda], 2 Gauben [auch eine auf Frontseite!]
2 Ziergiebel, 2 Erker
Master Bedroom altersgerecht im EG
20 Fenster & Türelemente mit Sprossen
Fliegengitter und Zierfensterläden
3 Wandschränke, 2 Kammern
Sehr viel Zierleisten
2 ½ Bäder
Klassische Treppe mit Garderoben-Kammer darunter [ab komplett ausgebaut]
Office / Büro mit separatem Zugang möglich
Dämmung und Energiebedarf
Wir werden immer wieder gefragt: Entsprechen Ihre Häuser der deutschen EnEV. Ja selbstverständlich! Etwas anderes wäre gar nicht zulässig. Und selbstverständlich müssen wir für alle Häuser einen Energiepass bzw. Wärmeschutznachweis erstellen lassen. Das geschieht durch Partner unseres Statikers. Die meisten unserer Häuser liegen zwischen A und A+ und fast immer deutlich über den aktuellen Vorgaben. Wie gesagt: dass Beste aus 2 Welten!
THE WHITE HOUSE american dream homes design setzt daher auf hohe bis höchste deutsche Bauqualität. Häuser mit bis zu 42,5 cm starken Außenwänden, 280 mm Außenwanddämmung, Installationsebene in den Außenwänden und mit OSB unterfütterten Gipsplatten. In Holzständerbauweise- oder mit Blähton-Massiv-Fertigteilen
Anbieterdetails




















