Hausbeschreibung
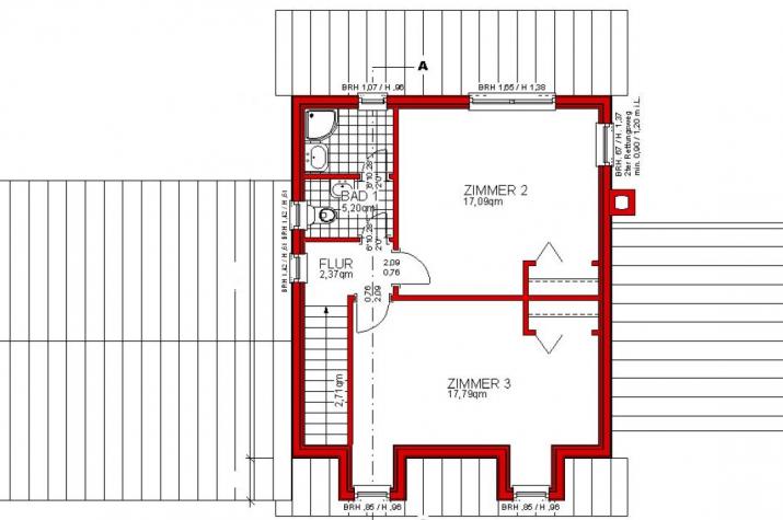
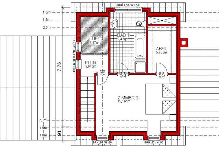
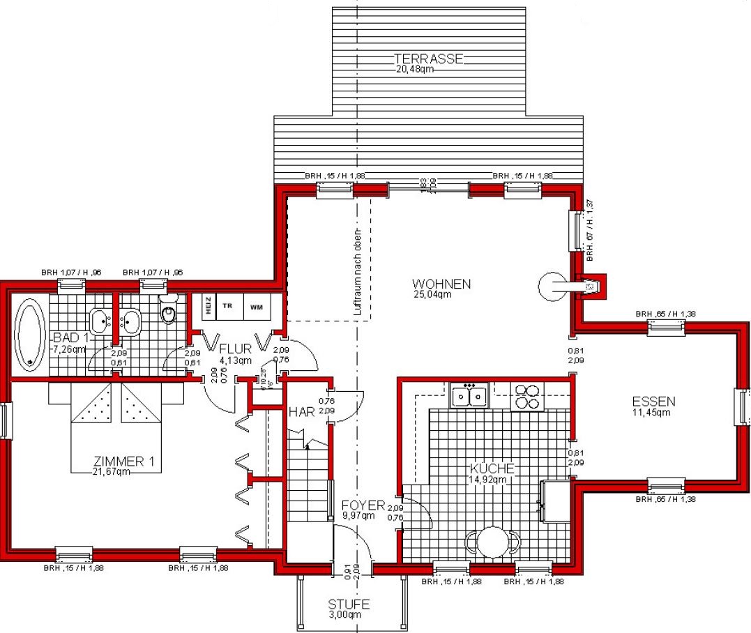
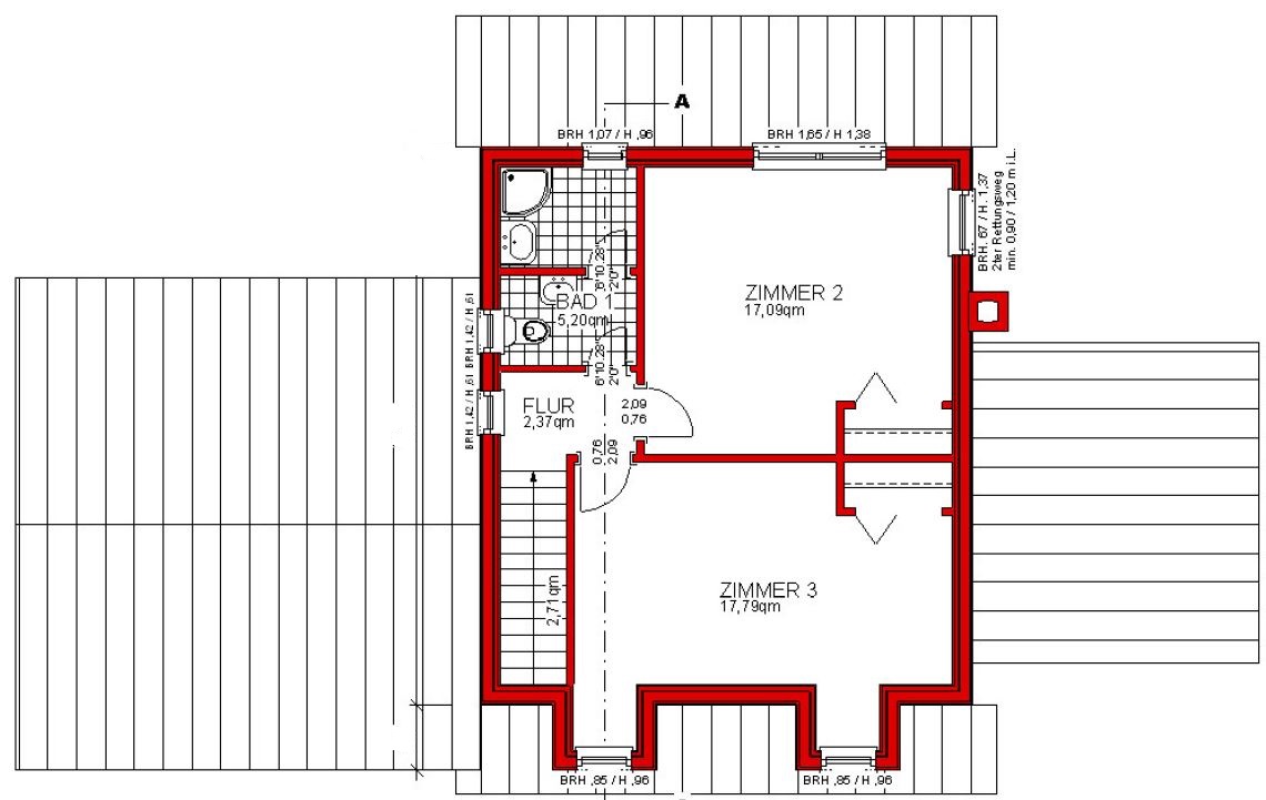
Sehr romantisches, kleineres Cottage. Auch gut geeignet als Wochenend- & Ferienhaus. 2 bis 3 Gauben. Front Porch [Veranda] & Rear Porch & Deck [Terrasse]. 25 Fenster & Türelemente mit Sprossen beidseitig
Fliegengitter und Zierfensterläden. 3 Wandschränke. Klassische Treppe mit Garderobenkammer darunter. 2 Bäder.
Inkl. Nutzflächen 148 m²
Sonstiges
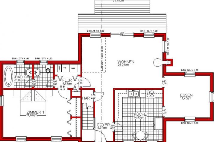
1 Grundriss-AlternativeAuch als Wochenend- & Ferienhaus geeignetAuch geeignet als Wochenend- & Ferienhaus
Extras und Besonderheiten
Extras
I
Besonderheiten
INKLUSIVE
Bausatz RAL-zertifiziert aus Deutschland inkl. Installationsebene im Bereich Außenwände
2 bis 3 Gauben
Front Porch [Veranda] & Rear Porch & Deck [Terrasse]
25 Fenster & Türelemente mit Sprossen beidseitig
Fliegengitter und Zierfensterläden
3 Wandschränke
Sehr viel Zierleisten
Klassische Treppe mit Garderobenkammer darunter [ab komplett ausgebaut]
2 Bäder
Dämmung und Energiebedarf
Wir werden immer wieder gefragt: Entsprechen Ihre Häuser der deutschen EnEV. Ja selbstverständlich! Etwas anderes wäre gar nicht zulässig. Und selbstverständlich müssen wir für alle Häuser einen Energiepass bzw. Wärmeschutznachweis erstellen lassen. Das geschieht durch Partner unseres Statikers. Die meisten unserer Häuser liegen zwischen A und A+ und fast immer deutlich über den aktuellen Vorgaben. Wie gesagt: dass Beste aus 2 Welten!
THE WHITE HOUSE american dream homes design setzt daher auf hohe bis höchste deutsche Bauqualität. Häuser mit bis zu 42,5 cm starken Außenwänden, 280 mm Außenwanddämmung, Installationsebene in den Außenwänden und mit OSB unterfütterten Gipsplatten. In Holzständerbauweise- oder mit Blähton-Massiv-Fertigteilen.
Anbieterdetails







