Hausbeschreibung
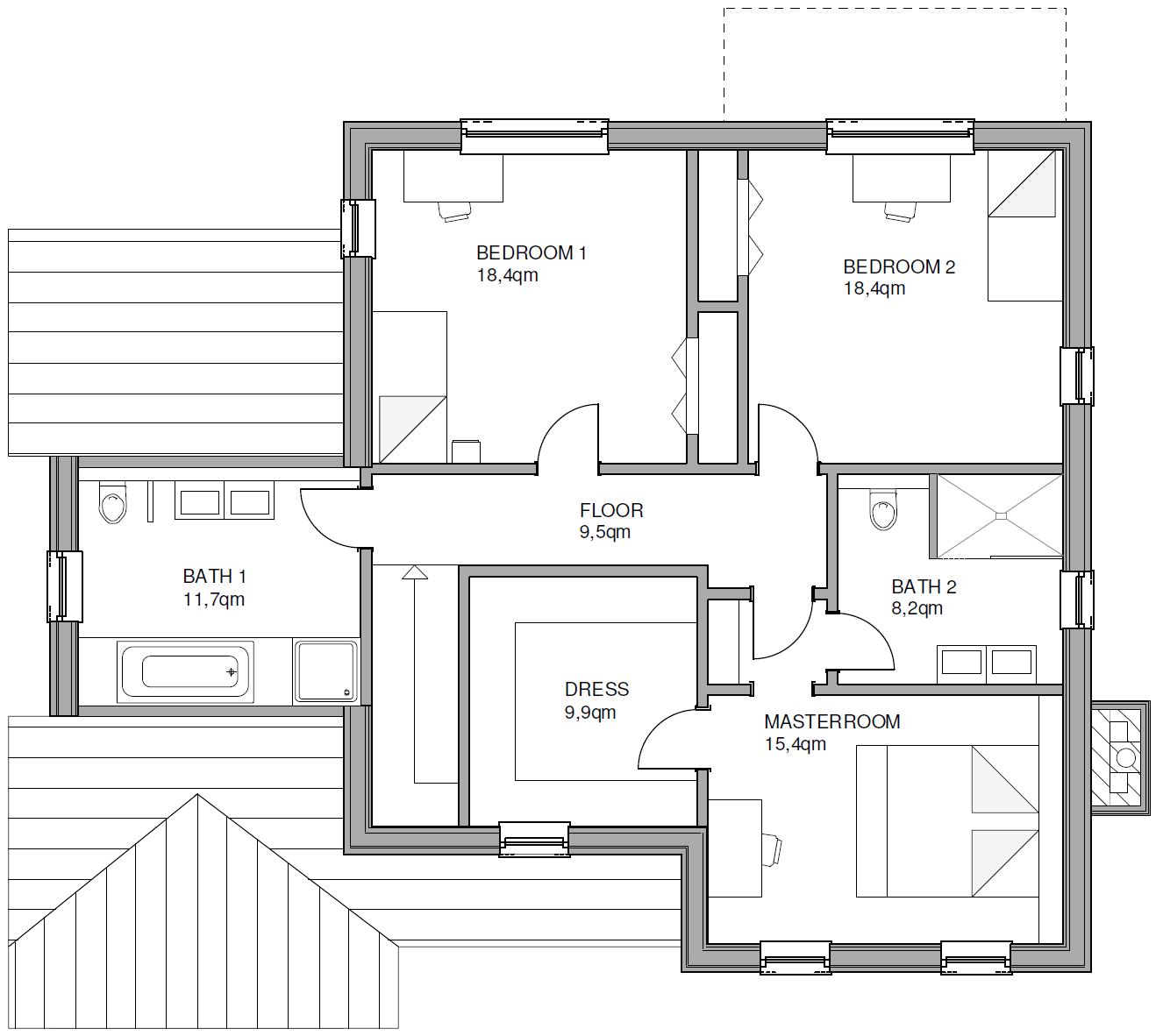
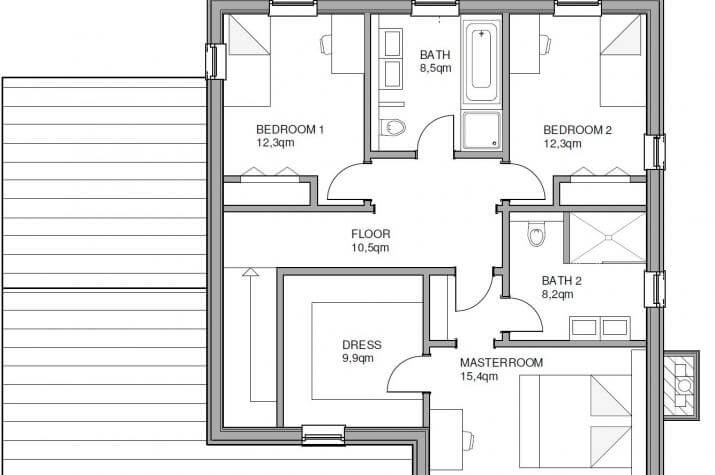
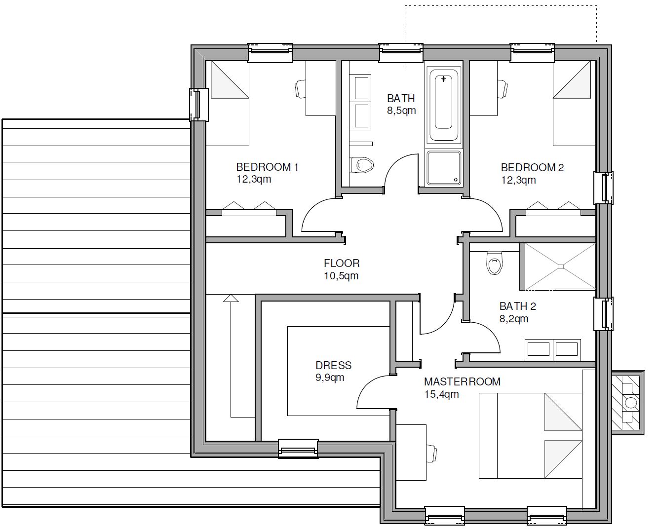
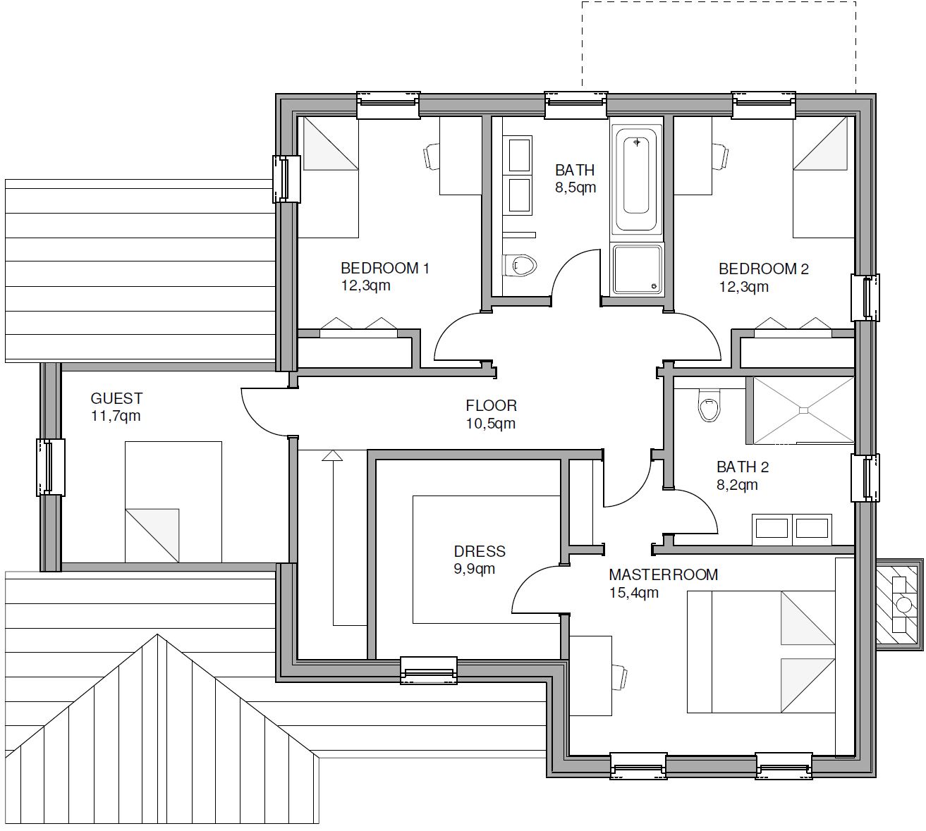
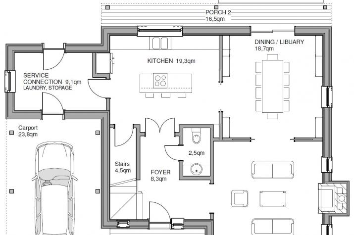
Typisch amerikanisches Haus für die 1 bis 2 Kindfamilie. Optional auch mit 3 Kinderzimmern oder einem Arbeits- & Gästezimmer. Wahlweise mit Carport oder Garage. 1 Ziergiebel. Front Porch, Rear Porch [Veranda] & Rear Deck [Terrasse]. 24 Fenster & Türelemente mit Sprossen
Fliegengitter und Zierfensterläden. 2 in die Wände versenkbare doppelte Schiebetüren, eine davon mit Glas & Sprossen. 1 Doppelflügeltür.
2 Wandschränke, 1 große Kleiderkammer, 1 Garderobenkammer. 2 ½ Bäder. Klassische Treppe mit Garderobenkammer darunter.
Inklusive Nutzflächen 191 m²
Sonstiges
Optional auch mit 3 Kinderzimmern oder einem Arbeits- & Gästezimmer. Wahlweise mit Carport oder Garage.
Extras und Besonderheiten
Besonderheiten
INKLUSIVE
Bausatz RAL-zertifiziert aus Deutschland inkl. Installationsebene im Bereich Außenwände
1 Ziergiebel
Front Porch, Rear Porch [Veranda] & Rear Deck [Terrasse]
24 Fenster & Türelemente mit Sprossen
Fliegengitter und Zierfensterläden
2 in die Wände versenkbare doppelte Schiebetüren, eine davon mit Glas & Sprossen
1 Doppelflügeltür
2 Wandschränke, 1 große Kleiderkammer, 1 Garderobenkammer
Sehr viel Zierleisten
2 ½ Bäder
Klassische Treppe mit Garderobenkammer darunter [ab komplett ausgebaut]
Dämmung und Energiebedarf
Wir werden immer wieder gefragt: Entsprechen Ihre Häuser der deutschen EnEV. Ja selbstverständlich! Etwas anderes wäre gar nicht zulässig. Und selbstverständlich müssen wir für alle Häuser einen Energiepass bzw. Wärmeschutznachweis erstellen lassen. Das geschieht durch Partner unseres Statikers. Die meisten unserer Häuser liegen zwischen A und A+ und fast immer deutlich über den aktuellen Vorgaben. Wie gesagt: dass Beste aus 2 Welten!
THE WHITE HOUSE american dream homes design setzt daher auf hohe bis höchste deutsche Bauqualität. Häuser mit bis zu 42,5 cm starken Außenwänden, 280 mm Außenwanddämmung, Installationsebene in den Außenwänden und mit OSB unterfütterten Gipsplatten. In Holzständerbauweise- oder mit Blähton-Massiv-Fertigteilen.
Anbieterdetails








