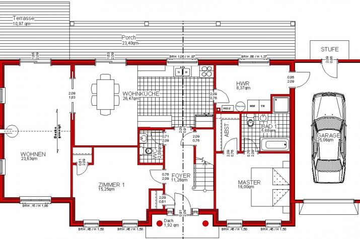
Hausbeschreibung
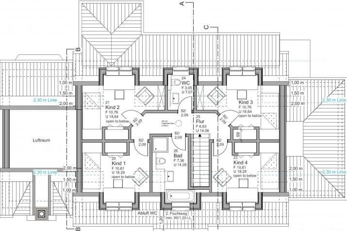
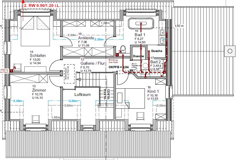
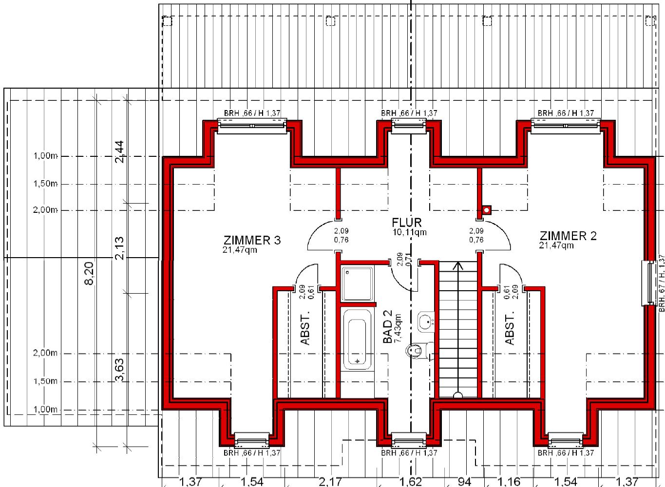
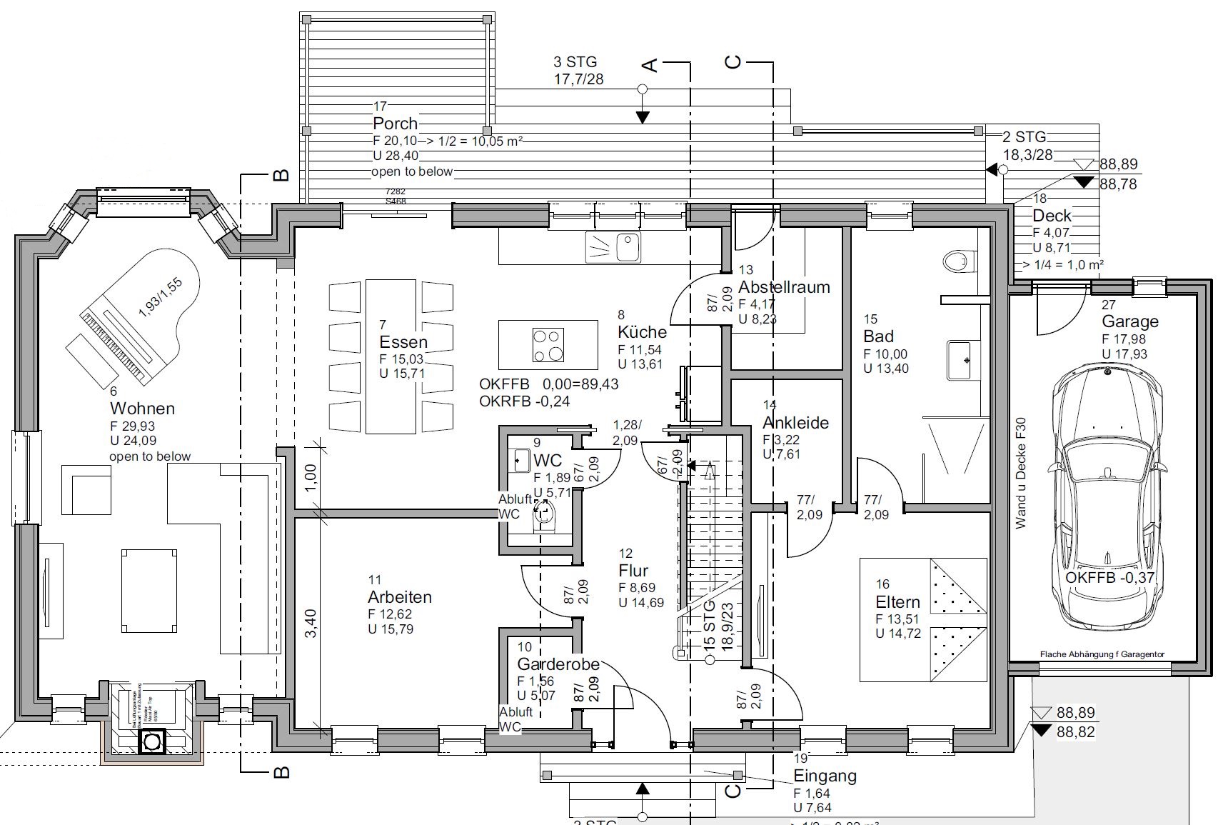
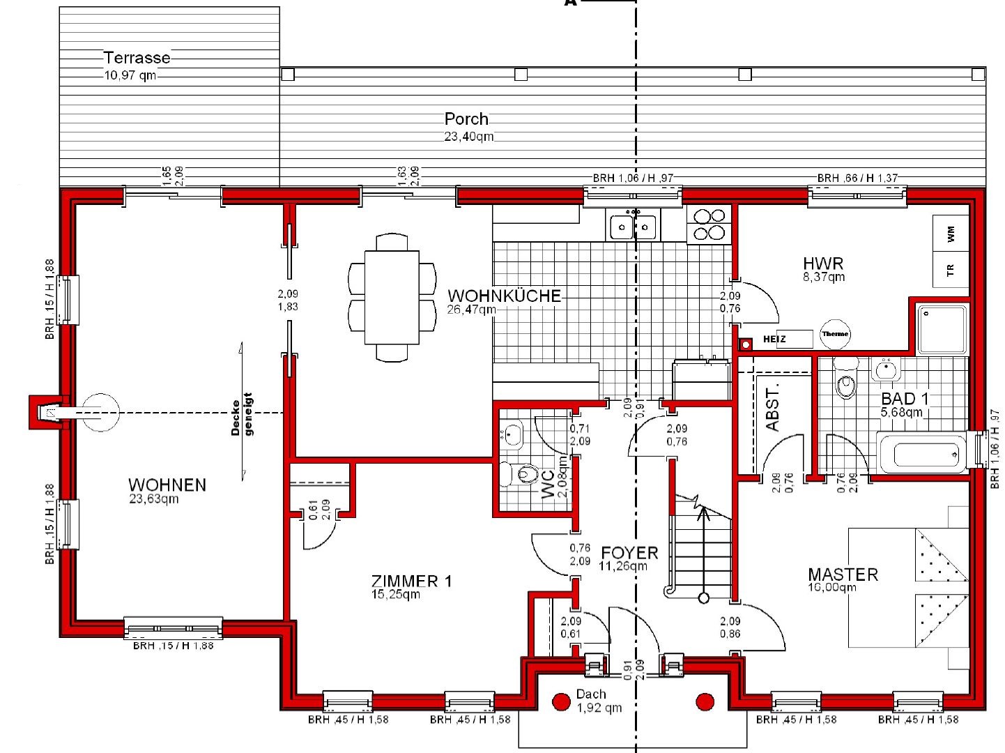
Elegantes, klassisches amerikanisches Cape Cod. Master Bedroom im Erdgeschoß, daher sehr altersgerecht. Arbeitszimmer im 1 floor vorhanden. 2 floor auch mit 4 statt 2 Zimmern denkbar. Front- & Garden-Porch. 6 Gauben, 1 Seitenflügel, Erker gegen Aufpreis. 2 sehr große Kinderzimmer oder 4 Kinderzimmer. Master Bedroom altersgerecht im EG. 30 Fenster & Türelemente mit Sprossen, Fliegengitter und Zierfensterläden. 4 Kleiderkammern und 2 Wandschränke. U.a. in die Wände versenkbare doppelte Schiebetüren, teilweise mit Glas & Sprossen
2 ½ Bäder. Klassische Treppe mit Garderobensckrank darunter. Office / Büro im Bereich Zimmer 1 möglich. Garage gegen Aufpreis.
Inkl. Nutzflächen 178 m²
Sonstiges
2 Floor / OG mit 4 statt 2 Kinderzimmernund weitere VariantenHaus wurde von TWH bei Mönchengladbach errichtet
Extras und Besonderheiten
Besonderheiten
INKLUSIVE
Bausatz RAL-zertifiziert aus Deutschland inkl. Installationsebene im Bereich Außenwände
Front- & Garden-Porch
6 Gauben, 1 Seitenflügel, Erker gegen Aufpreis
2 sehr große Kinderzimmer oder 4 Kinderzimmer
Master Bedroom altersgerecht im EG
30 Fenster & Türelemente mit Sprossen
Fliegengitter und Zierfensterläden
4 Kleiderkammern & 2 Wandschränke
U.a. in die Wände versenkbare doppelte Schiebetüren, teilweise mit Glas & Sprossen
Sehr viel Zierleisten
2 ½ Bäder
Klassische Treppe mit Garderobensckrank darunter [ab komplett ausgebaut]
Office / Büro im Bereich Zimmer 1 möglich
Garage gegen Aufpreis
Dämmung und Energiebedarf
Wir werden immer wieder gefragt: Entsprechen Ihre Häuser der deutschen EnEV. Ja selbstverständlich! Etwas anderes wäre gar nicht zulässig. Und selbstverständlich müssen wir für alle Häuser einen Energiepass bzw. Wärmeschutznachweis erstellen lassen. Das geschieht durch Partner unseres Statikers. Die meisten unserer Häuser liegen zwischen A und A+ und fast immer deutlich über den aktuellen Vorgaben. Wie gesagt: dass Beste aus 2 Welten!
THE WHITE HOUSE american dream homes design setzt daher auf hohe bis höchste deutsche Bauqualität. Häuser mit bis zu 42,5 cm starken Außenwänden, 280 mm Außenwanddämmung, Installationsebene in den Außenwänden und mit OSB unterfütterten Gipsplatten. In Holzständerbauweise- oder mit Blähton-Massiv-Fertigteilen.
Anbieterdetails




















