Hausbeschreibung
HausWerk - Standard Schlüsselfertig inkl. Bodenplatte:
• Feuerwiderstandsklasse REI120 nach DIN EN 13501-2
• Erstellung einer Werkstatt- und Montageplanung
• Vorfertigung von Bauelementen
• Transport vom Produktionswerk zur Baustelle
• Fundamentbau (ohne Bodenaustausch)
• Montage der oberirdischen Struktur des Hauses (Kran und Gerüst im Preis inbegriffen)
• Bereitstellung sozialer Einrichtungen für Mitarbeiter
• Satteldachkonstruktion
• Betonböden
Komplette Außentischlerei:
• PVC-Fenster, IGLO ENERGY, Dreifachverglasung, 7-Kammer-Profil, weiß / Farbe
• energiesparende Eingangstür aus Stahl
Außenausführung:
• weißer Putz / farbige Fassade
• Dacheindeckung BRATEX / MESSING-Ziegel / Metallziegel oder EPDM-Folie auf einem Flachdach
• Rinnensystem - Stahlrinnen in Dachfarbe
Inkl. Installationen:
• Elektrisch
• Sanitär
• Luft/Wasser-Wärmepumpe
• Warmwasserspeicher
• Zentral kontrollierte Wohnraumlüftung
• Photovoltaik-Anlage inkl. Stromspeicher
• Wärmerückgewinnung
Paket:
umfasst eine zentrale Wohnraumlüftung sowie eine Photovoltaik-Anlage inkl. Stromspeicher.
Beachten Sie Bitte:
Die Ausführung einer Photovoltaik-Anlage ist abhängig von der Ausrichtung und
Größe der hierfür verfügbaren Dachfläche!
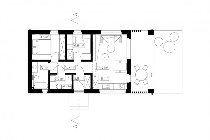
*Abbildungen zeigen teilweise individuelle Zusatzausstattung*
***Werkführung auf Anfrage möglich***
******(DE) Katalog nur auf Anfrage******
Extras und Besonderheiten
Extras
Dank der diffusionsoffenen Trennwände und der einzigartigen Fähigkeit des Holzes, die Luftfeuchtigkeit selbst zu regulieren, haben die Häuser ein freundliches Mikroklima und optimale Bedingungen mit ordnungsgemäßer Wasserdampfableitung nach außen.
Besonderheiten
Möglichkeit, den Feuerwiderstand der Trennwände an beliebige Anforderungen anzupassen. Schwer entflammbares KVH-Holz, Fermacell-Plattenbarriere und nicht brennbare Steinwolle machen unsere Häuser feuerbeständig bis REI 120 und NRO.
Dämmung und Energiebedarf
Zu den fertigen Trennwänden der HausWerk-Häuser gehören Konstruktionselemente, Wärmedämmung und Schalungsplatten. Die Wärmedämmung macht fast 80 % der Dicke der Außenwand aus, was sich in einer hohen Energieeffizienz und den besten Standards der Wärmeübertragung niederschlägt: U = 0,10-0,14 W / m²K. Schrägdächer eingedeckt mit Ziegeln, Metallziegeln oder EPDM-Folie auf Flachdächern. Thermischer Komfort dank der Phasenverschiebung bis zu 14h. Standard energieeffizienter Häuser durch den Einsatz von Wärmepumpen, Photovoltaikmodulen und mechanischer Belüftung mit Rekuperator.
Anbieterdetails












