Hausbeschreibung
o Komplette Architektenleistung und Bauantrag
o Wärmeschutznachweis und Statik
o Energiepass o Prüfstatik - in Hessen Pflicht –
o Vermessungskosten der Hausparzelle inkl. Schnurgerüstabnahme
o Baugrubenaushub, Verfüllung und Verdichtung
o Baustrom & Bauwasser inkl. Verbrauch
o KG als WU-Keller (Weiße Wanne) 10 Jahre Garantie
o Massiver Rohbau mit Ziegel (Poroton) oder Ytong
o Bodenplatte in WU-Stahlbeton (25 cm)
o Decken in Stahlbeton (min. 20 cm)
o Dachstuhl, Dacheindeckung (Braas), Spengler
o Luft-Wasser-Wärmepumpe
o Fußbodenheizung komplett
o Sanitäre Gegenstände lt. Plan
o sämtliche Elektroarbeiten
o Fenster, Fenstertüren, Rollläden
o Innenputz,
o Trockenbauarbeiten in den Dachgeschossschrägen
o geflieste Bäder und WC
o Fußbodendämmarbeiten und Estrich
o Massive Vollholzinnentreppe mit Geländer
o Echtholzfurnierte Türen mit eleganter Drückergarnitur
o verschiedene Hauseingangstüren zur Wahl
o Dichtigkeitstest
Sonstiges
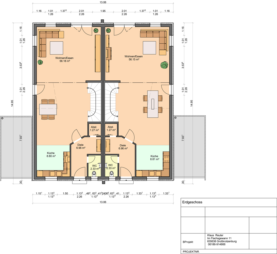
Dies sind nur beispielhafte Entwurfsplanungen und werden in einem persönlichen Projektgespräch nach Ihren Wünschen, den grundstücksbezogenen Gegebenheiten und den planungsrechtlichenVorgaben des Bebauungsplans angepasst!
Anbieterdetails




