Hausbeschreibung
Clever geplantes und ausgesprochen helles Einfamilienhaus für die junge Familie oder Paare.
Ausgesprochen große Glaselemente im Wohn- und Essbereich sowie der sichtbaren Holzkonstruktion verleihen diesem wunderbaren Satteldach-Haus mit langen Dachüberständen ein ganz besonderes Ambiente.
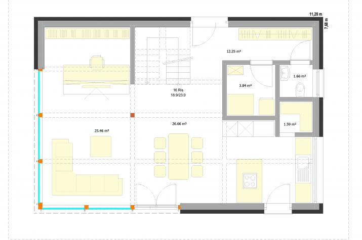
Der Treffpunkt der Familie ist der einladende Wohnbereich im Erdgeschoß mit einer Vielzahl von Einrichtungsmöglichkeiten.
Auch die Kinder haben im Dachgeschoß ihr eigenes "Domizil" in dem sie sich völlig ungezwungen entfalten können und ihren eigenen Rückzugsbereich haben.
Selbstverständlich sind die hervorragenden energetischen Eigenschaften des Hauses. Ausgestattet mit einer Luft-Wasser-Wärmepumpe in Verbindung mit einer Fußbodenheizung sowie einer zentralen Lüftungsanlage ist der "Effizienzhaus 40" - Standard erreicht.
Hochwertige Wand- und Bodenbeläge "runden" das Ambiente dieses großzügig verglasten Hauses mit elektrischen Raffstores ab.
Unser "Vita Prima 134" ist sowohl auf Bodenplatte wie auch auf Keller zu realisieren. Darüber hinaus sind weitere Bauteile wie Balkon, Gaube oder Trauferker problemlos zu integrieren.
Sonstiges
Überzeugen Sie sich selbst von einem individuell gestaltbaren Wohnhaus für junge Familien und Paare die das "Gewisse Etwas" bei ausgesprochen hoher Qualität zu schätzen wissen !
Extras und Besonderheiten
Extras
Großzügig verglaste Fensterim Ess- und Wohnbereich (3-Fach-verglast). Seien Sie der Natur nah ! Ausschließliche Verschattung mit elektrischen Raffstores !Komplette Hauskonstruktion aus Brettstapelholz-Qualitätsversprechen !
Besonderheiten
Difussionsoffene Bauweise mit mineralischen Baustoffen sowie Holzfaserdämmung an den Außenwänden.
Installationsebene an allen Außenwänden.
Dämmung und Energiebedarf
Wir sind überzeugt von unserem difussionsoffenem Wandsystem mit einer Holzfaserdämmung-Für Sie bedeutet dieses ein wohnliches komfortables wunderbares Wohngefühl.
Anbieterdetails







