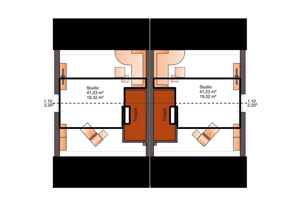
Hausbeschreibung
Klassisches Doppelhaus mit Satteldach mit 37 Dachneigung, 2 Vollgeschoße + Dachstudio,.
Ausbaustufe "einzugsfertig" (LS4 lt. BLB) inkl. ALU Rollos. Unterbau in Eigenvergabe örtlich oder als Bärenhausleistung.
Bärenhaus-Bodenplatte € 21.159;
Bärenhaus-Rohbaukeller alternativ € 49.512;
Freie Planung ohne Planungsmehrkosten.
ANGEBOTSHAUS - gültig bis 30.11.2022 (Bauvertragsdatum). Festpreisgarantie.
Extras und Besonderheiten
Extras
Aktionshaus zum Sonderangebotspreis "einzugsfertig"
Dämmung und Energiebedarf
starke Dämmung der Außenwände und des Dachbereichs (EH40). EH40+ möglich bei Einsatz einer zusätzlichen PV-Anlage mit Stromspeicher
Anbieterdetails


Weitere Häuser dieses Anbieters
Einfamilienhaus - Landhaus - Satteldach -...
Bungalow - U-Form mit zwei Erkern - Walmdach -...
Einfamilienhaus - Wintergarten - schlüsselfertig
Bauhausvilla - Flachdach - bis zu 2 Dachterrassen...






