Hausbeschreibung
Wir verwirklichen die Hausträume unserer Kunden seit über 20 Jahren. Dabei legen wir sehr viel Wert auf eine persönliche Beratung und Betreuung, die einen Komplettservice mit individueller Planung und Festpreisgarantie umfasst. Als Familienunternehmen stehen wir für Tradition und Moderne. Tradition bedeutet für uns ehrliches Handwerk, hohe Professionalität, jahrzehntelanges Wissen, eigene, stets aktuell geschulte Mitarbeiter und die Hochwertigkeit ausgesuchter Materialien. Unter Moderne verstehen wir Ressourcenschonung, Nachhaltigkeit und den Einsatz effizienter Lösungen. Wir bauen für Sie wohnflächenoptimierte Einfamilien- sowie Mehrfamilienhäuser, barrierefreie Bungalows und moderne Villen. Dabei ist unser Preis-Leistungs-Verhältnis unschlagbar, denn unser Angebot umfasst die Ausführung nahezu sämtlicher Arbeiten durch eigenes Personal. Somit sind wir von der Planung bis zur Außengestaltung Ihr einziger Ansprechpartner und können Ihre Wünsche maßgeschneidert realisieren. Lediglich Ihr Umzugsunternehmen müssen Sie noch selbst organisieren. Wir freuen uns, Ihre Träume verwirklichen zu dürfen.
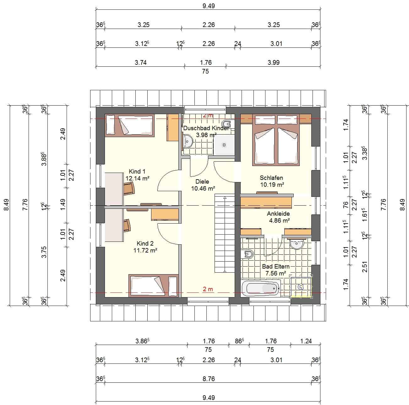
Mit dem Haustyp Klassik 12.62 hat man mit dem großen Wohn-und Essbereich und der angrenzenden offenen Küche im Erdgeschoss eine schöne Raumaufteilung geschaffen. Das Dachgeschoss mit seinen zwei Kinderzimmern und dem Schlafzimmer mit Ankleide lässt keine Wünsche offen. Mit einem Festpreis und einer Bauzeitgarantie ist die Firma Mihm Thermobau in Buttlar der richtige Ansprechpartner für die Bauherren.
Sonstiges
Grundrisse variabel gestaltbar je nach Südseite, Terrassenanordnung, Straßenzufahrt und/oder Himmelsrichtung.
Extras und Besonderheiten
Extras
Vollmassive Bauweise mit dicken Außenmauern ohne WDVS.
Besonderheiten
Wandaufbau monolithisch
Dämmung und Energiebedarf
Sie erhalten ein qualitätsgeprüftes Haus mit Energieausweis inkl. Blower-Door-Test zur Winddichtigkeitskontrolle. Eine moderne Luft/Wasser-Wärmepumpe beheizt via Fußboden.
Anbieterdetails











