Hausbeschreibung
Außenwände 260 mm
umlaufend wird ein Nagerschutzgitter angebracht
Holzbeplankung 21×145 Fichte AB – 1 x grundiert - 1 x gestrichen - RAL-Farbe
gehobelt oder sägerau nach Wahl des Käufers
30x50mm Lattung als Hinterlüftung
Diff. offene Folie für Fassade / Tyvek oder Riwega
200 mm Holzständerwerk KVH/ cc = 600mm
200 mm (100+100) Isolierung URSA oder Rockwool
Wärmeleitfähigkeit 035
Wärmedämmstoff für Gebäude – werkmäßig hergestellte Mineralwolle (MW) gem. DIN EN 13162
- nichtbrennbar
- Schmelzpunkt > 1000 °C
- nicht glimmend
- wärme- und schalldämmend
- hoch komprimiert
- diffusionsoffen
PE Dampfbremsfolie blau 0,2 mm
U-Wert der Außenwand = U=0,134/m²K
U-Wert der Außenwand mit 40 mm STEICO-Holzfaser-Dämmplatte als Putzträger= U=0,120/m²K
Unsere Dämmung der Außenwand: Isolierung der Wärmeleitfähigkeit 0,035 W/mK = 3-Liter Haus U=0,15
Die Rahmen der Innenwände sind aufgestellt, die Fenster sind eingebaut. Die Haustür ist im Lieferumfang enthalten. Dachkonstruktion mit Dachbindern. Benders Dacheindeckung inkl. Dachrinnen, Fallrohre, Innen- und Außenfensterbänke.
Die Struktur unserer Häuser wurde unter Berücksichtigung der spezifischen klimatischen Anforderungen und Bauvorschriften in Norwegen entwickelt. Wir verwenden nur hochwertiges Massivbauholz. Wir sind uns bewusst, dass die Kombination von guter und kostengünstiger Gebäudewissenschaft mit den richtigen Produkten und Materialien dazu beitragen kann, ein Zuhause zu schaffen, das gesünder, effizienter - und gleichzeitig umweltfreundlich ist.
Unser Bauholz stammt aus verantwortungsvoll beforsteten Wäldern, damit diese auch für zukünftige Generationen noch erhalten bleiben.
NORGES HUS Nova OÜ verfügt über die Voraussetzungen, um Qualitätsprodukte, Qualitätskonstruktion und Kundenzufriedenheit zu bieten.
Unsere 14-seitige Baubeschreibung übersenden wir Ihnen mit unserem speziellen Hausangebot.
Extras und Besonderheiten
Extras
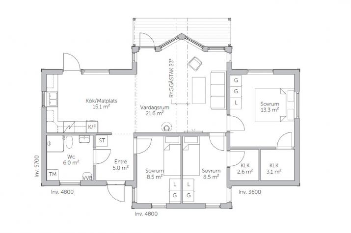
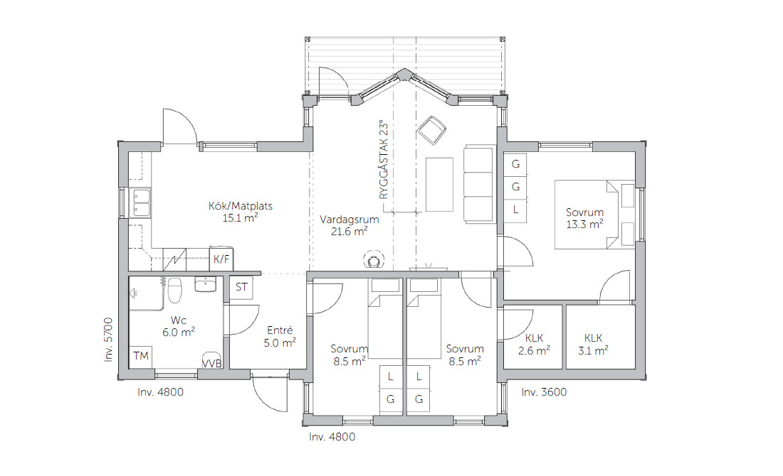
Panoramagiebel, Erker
Besonderheiten
Liebe auf den ersten Blick oder nach einer kleinen Anpassung. Wir können alle unsere Häuser so anpassen, dass sie genau Ihren Wünschen entsprechen.
Dämmung und Energiebedarf
U-Wert der Außenwand = U=0,134/m²K
Anbieterdetails


Weitere Häuser dieses Anbieters
Ausbauhaus 87 Kaufpreis 91.630.-- € inkl. 19%...
Ausbauhaus 89 Kaufpreis 79.550.-- € inkl. 19%...
Ausbauhaus mit Gästehaus Kaufpreis: 119.240.-- €...
Ausbauhaus 106 Kaufpreis 86.150,00 € inkl. 19%...



