Musterhaus Sachsenheim (Baden-Wuerttemberg)
Adresse
Rossäcker 1674343 Sachsenheim
Öffnungszeiten
Termine nach telefonischer Absprache.Hausbeschreibung
Kurzübersicht:
Architektenleistung inkl. Statik
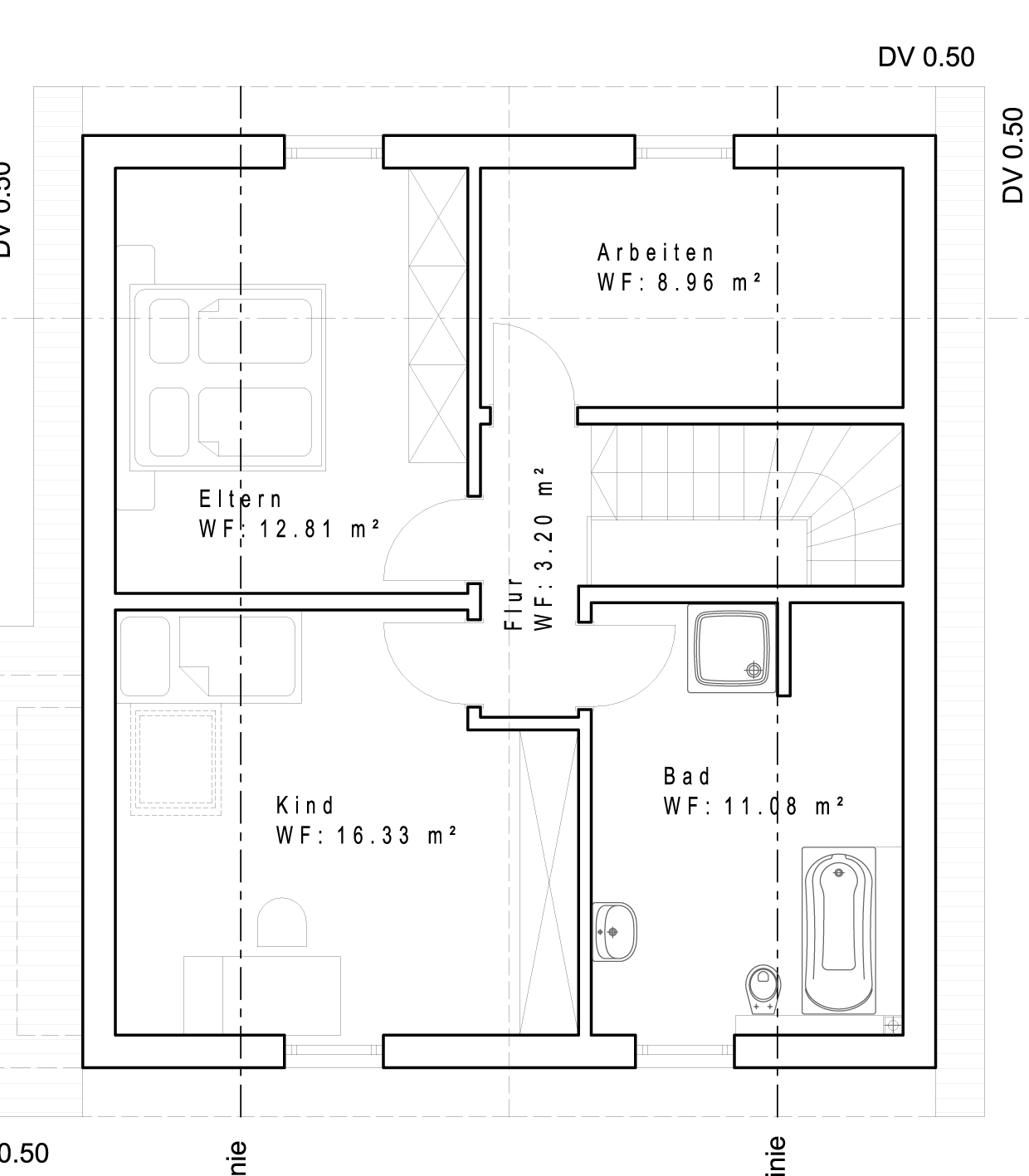
Außenwände U-Wert 0,12 374 mm
Innenwände tragend (nichtragend) 169 mm (149 mm)
Decken Rohbau 262 mm
Zimmermannsdachstuhl mit Satteldach
Konstruktion aus KVH® – Holz und Leimbindern
Frankfurter Pfanne matt mit Protegonbeschichtung
Erker mit Überdachung
Kunststoff – Haustüre mit Alufüllung, Edelstahlgriff
Söba Energeto 3D Fenster passivhaustauglich mit
3 - Fach Verglasung Ug-Wert 0,6, Fenstergesamt Uw-Wert 0,8
Wärmegedämmte Alurollläden
1 Dachflächenfenster mit elektr. Rollladen
Außenfensterbänke Alu
Dachentwässerung Titanzink oder Kunststoff
Nano - Außenendputz weiß oder farbig mit Farbstreifen Eingangsseite
Elektrik inkl. Zählerschrank
Gastherme Vaillant/Wolf mit Solaranlage für Brauchwasser
300 l Pufferspeicher
Anhydrit Fließestrich
Fußbodenheizung raumgesteuert EG und OG
Gäste WC, Bad mit bodentiefer Echtglasdusche
tapezierfertiger Trockenbau
Malerarbeiten, Rauhfaser deckend weiß gestrichen
Fliesen verlegen im Gäste-WC, Flur EG, Küche, Bad
Laminat verlegen im Wohnzimmer, Schlafen EG, OG außer Bad
Innenfensterbänke Werzalit
CPL Innentüren
Buche Treppe massiv
4 Rauchmelder
Keller/Bodenplattenabdichtung „Safety“
Blower Door Test
Sonstiges
Sie wollen kein o815 - Haus von der Stange ?
Ein frei geplantes Architektenhaus nach ihren Vorstellungen ?
OHNE Aufpreis !!
Sie wollen keine "ab" Preise sondern einzugsfertig ?
Sie wollen Preise UND Baubeschreibungen sehen ?
Sie wollen kein Hausbild sehen mit
"Bild kann Sonderausstattung enthalten"= Aufpreis
Sie wollen Grundrissänderungen, freie Planungen ohne Aufpreis?
Sie wollen eine Bemusterung VOR Hausvertrag ?
Einfach auf Hauskonfigurator gehen…
………. dann sind Sie bei uns richtig !
Anbieterdetails






