Hausbeschreibung
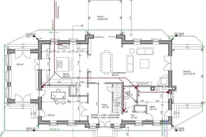
Klassisches Gutshaus für die 2- bis 3-Kind-Familie mit Wintergarten. Großes, nach oben offenes Foyer mit klassischer Treppe. Großer Wohn-/Ess-Bereich. Großzügiges Arbeitszimmer.
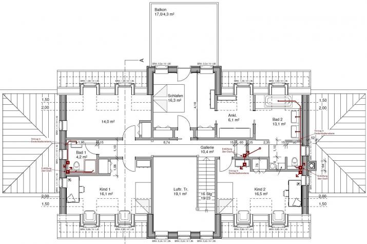
Master-Suite mit größerem Balkon, 2 größere Kinderzimmer und Gästezimmer.
Porches / Veranden rechts und hinter dem Haus.
Auf Wunsch separate Garage/n.
Inkl. Nutzflächen 297 m²
Sonstiges
separate Garage/nauch verputzt, massiv und / oder mit dt. Drehkippfenstern, dt. Dacheindeckung und Innentüren möglich.Haus wurde von TWH in Thüringen erbaut
Extras und Besonderheiten
Besonderheiten
INKLUSIVE
Bausatz RAL-zertifiziert aus Deutschland inkl. Installationsebene im Bereich Außenwände
Klassisches Gutshaus im Brandenburger Stil, Haustür mit 2 Flügeln
2 Ziergiebel, ein Anbeu, 8 Gauben
Großes Wohn-/Esszimmer, große Küche, großes Arbeitszimmer,
Links Wintergarten, rechts Porch und Garten-Porch auf der Rückseite
50 Fenster & Türelemente mit Sprossen
Fliegengitter und Zierfensterläden
1 Kleiderkammern, 6 Wandschrank
Sehr viel Zierleisten
2 ½ Bäder
Klassische Treppe
Dämmung und Energiebedarf
Wir werden immer wieder gefragt: Entsprechen Ihre Häuser der deutschen EnEV. Ja selbstverständlich! Etwas anderes wäre gar nicht zulässig. Und selbstverständlich müssen wir für alle Häuser einen Energiepass bzw. Wärmeschutznachweis erstellen lassen. Das geschieht durch Partner unseres Statikers. Die meisten unserer Häuser liegen zwischen A und A+ und fast immer deutlich über den aktuellen Vorgaben. Wie gesagt: dass Beste aus 2 Welten!
THE WHITE HOUSE american dream homes design setzt daher auf hohe bis höchste deutsche Bauqualität. Häuser mit bis zu 42,5 cm starken Außenwänden, 280 mm Außenwanddämmung, Installationsebene in den Außenwänden und mit OSB unterfütterten Gipsplatten. In Holzständerbauweise- oder mit Blähton-Massiv-Fertigteilen.
Anbieterdetails











