Hausbeschreibung
Typisch amerikanisches Haus für die 2-Kind-Familie
Mit Arbeits- & Gästezimmer
Wohnzimmer als Anbau bis unter den First offen
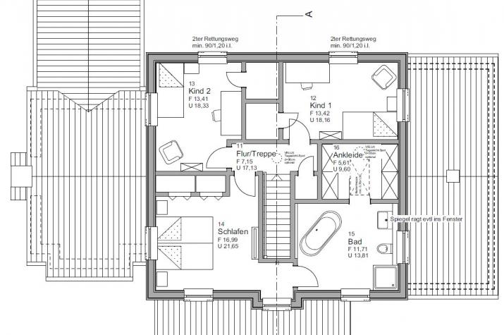
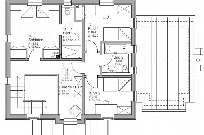
Großzügige Galerie
Front-Porch [Veranda] & Deck hinter dem Haus
Sitzerker und Ziergiebel
Klassische Treppe mit Garderobenschrank darunter
2 1/2 Bäder
Wandschränke
Fenster mit Fliegengittern
Bausatz RAL-zertifiziert aus Deutschland inkl. Installationsebene im Bereich Außenwände
ALLE Wände Gips OSB unterfüttert
Viele Grundriss-Varianten
Inkl. Nutzflächen ab 179 m²
Sonstiges
Haus wurde 2 Mal in Deutschland errichtet.In Brandenburg und abgewandelt in BW.
Extras und Besonderheiten
Besonderheiten
INKLUSIVE
Bausatz RAL-zertifiziert aus Deutschland inkl. Installationsebene im Bereich Außenwände
Foyer nach oben offen, Wohnzimmer nach oben offen gegen Aufpreis
Sitzerker, Ziergiebel
Carport oder Garage gegen Aufpreis
Galerie
31 Fenster & Türelemente mit Sprossen elektrisches Sektional-Garagentor
Fliegengitter und Zierfensterläden
4 Wandschränke, 1 Garderoben-Kammer
Klassische Treppe mit Garderobenkammer darunter [ab komplett ausgebaut]
Sehr viel Zierleisten
2 ½ Bäder
Diverse Grundriss gegen Aufpreis
Dämmung und Energiebedarf
Wir werden immer wieder gefragt: Entsprechen Ihre Häuser der deutschen EnEV. Ja selbstverständlich! Etwas anderes wäre gar nicht zulässig. Und selbstverständlich müssen wir für alle Häuser einen Energiepass bzw. Wärmeschutznachweis erstellen lassen. Das geschieht durch Partner unseres Statikers. Die meisten unserer Häuser liegen zwischen A und A+ und fast immer deutlich über den aktuellen Vorgaben. Wie gesagt: dass Beste aus 2 Welten!
THE WHITE HOUSE american dream homes design setzt daher auf hohe bis höchste deutsche Bauqualität. Häuser mit bis zu 42,5 cm starken Außenwänden, 280 mm Außenwanddämmung, Installationsebene in den Außenwänden und mit OSB unterfütterten Gipsplatten. In Holzständerbauweise- oder mit Blähton-Massiv-Fertigteilen.
Anbieterdetails
















