Musterhaus Poing (Bayern)
Adresse
Senator-Gerauer-Straße 2585586 Poing
Öffnungszeiten
Dienstag bis Samstag, 10 bis 17 UhrWeitere Informationen
Unser Musterhaus ist an Sonn- und Feiertagen ohne Beratung geöffnet und kann nur eingeschränkt besichtigt werden.Hausbeschreibung
Das Musterhaus „Alpenchic“ kombiniert traditonelle alpenländische Architketurdetails mit zeitgemäßem, modernem Design. Natürlich gesunde Materialien, und gezielt eingesetztes Holzdesign bei der Innengestaltung tragen zum gemütlichen und chicen Flair bei, das sich mit der gebotenen Großzügigkeit zeitgemäßen Wohnens verbindet. Zukunftsweisend ist das Energiekonzept mit Photovoltaik-Anlage, Windkraft-Turm, und Brennstoffzelle. Unterm Strich: Deutschlands erstes Eigenheim mit Minergie-ECO-Zertifikat!
Der rechteckige Baukörper mit flach geneigtem, weit überstehendem Satteldach und die Holzschindeln der Fassade schaffen den sichtbaren Bezug zum traditionell alpinen Baustil. „Dies verbinden wir mit den Möglichkeiten der heutigen Zeit“, erklärt der Architekt, Georg Schauer und verweist auf die „großzügige Verglasung an Stellen, an denen früher ein offen stehendes Scheunentor den Blick ins Innere freigab“. Die Raumaufteilung „könnte dem Umbau eines Heustadels zum Wohnhaus gleichkommen“.
Großzügigkeit und Natur pur
Man betritt das luxuriöse Einfamilienhaus durch ein, vor der Fassade platziertes Eingangsmodul. Vom Eingangsbereich aus gelangt man direkt zum Gäste-WC, der Garderobe und dem anschließenden Arbeitszimmer. Danach öffnet sich der großzügig bemessene, lichtdurchflutete Koch-Ess-Wohnbereich. Als “urgemütlich und natürlich edel“ beschreibt Innenarchitekt Richard Storz das Ambiente. Es lebt von der Kombination Naturstein (Böden), Eschen- und Tannenholz (Böden/Wände/Decken/ Möbel) sowie dunklem Stahl (Treppe, Möbel) mit einer sehr modernen Einrichtung; eine harmonische Spannung aus heimischen, teils groben Materialien und glatten Oberflächen.
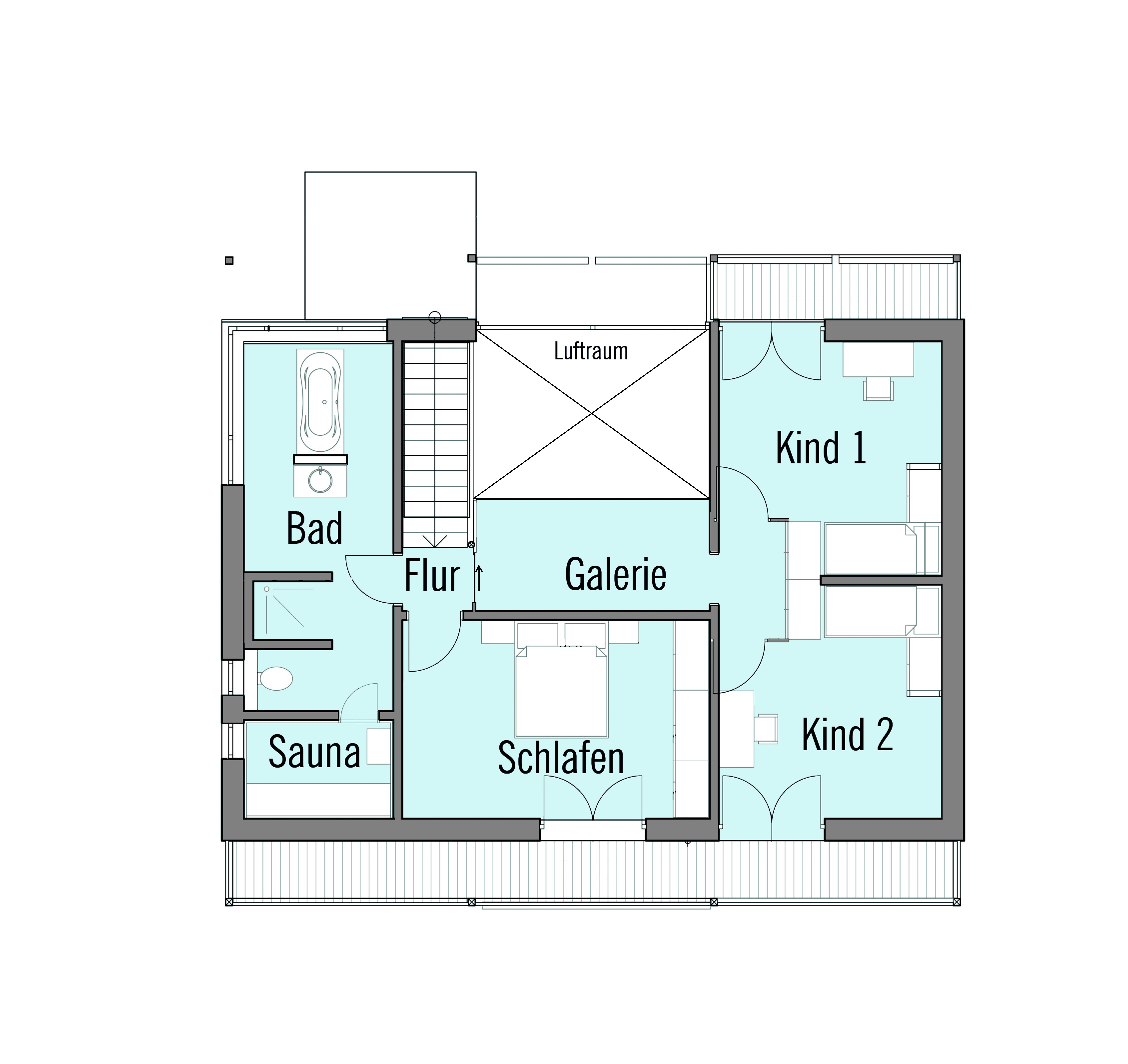
Klare Linie zeigt auch das Obergeschoss: Wellnessbad mit Baufritz-Sauna auf der einen, Elternschlaf- und zwei Kinderzimmer, die alle einen Balkonzugang besitzen, auf der anderen Seite. Die Galerielösung mit Arbeitsplatz verbindet beide Wohnebenen durch eine vertikale Sichtachse, und schenkt dem Essplatz luftige Höhe; Stichwort mehrgeschossiger, offener „Stadel“ früherer Tage.
Nahezu autarkes Öko-Designhaus mit Eigenstromproduktion
Deutlich in die Zukunft weist die Haustechnik mit einem außergewöhnlichen Energiekonzept (siehe auch Thementext „Energiekonzept“). Das Haus erzeugt einen Großteil des benötigten Stroms selbst, und zwar mittels Photovoltaikanlage, Windkraft-Turm und Brennstoffzelle. Im Vordergrund steht die möglichst hohe Eigennutzung für Warmwasserbereitung und Haushalt, plus Ladestation für Elektro-Mobile, was ein Batteriespeicher unterstützt. Verbleibende Stromüberschüsse fließen gegen Vergütung ins öffentliche Netz. Die erdgasbetriebene Brennstoffzelle übernimmt auch die Heizung des Hauses.
„Minergie-ECO“ für höchste Qualität
Das KfW-Effizienzhaus 55 ist Deutschlands erstes Eigenheim mit Minergie-ECO-Zertifikat. Das anspruchsvolle Nachhaltigkeits-Siegel bescheinigt dem Musterhaus besondere Qualitäten in Sachen Energieeffizienz, Ökologie, Baubiologie und Wohnwert (siehe Thementext „Nachhaltigkeit“). Hervorzuheben ist dabei der Minikeller unter dem Haus, der den Kriterien der Zertifizierung entsprechend aus Recycling-Beton hergestellt wurde. Hier findet die gesamte Haustechnik, sowie eine Wasseraufbereitungs-Anlage für Trinkwasser Platz.
Weitere Informationen unter www.baufritz.de
Dämmung und Energiebedarf
biologische Naturdämmung aus Hobelspan - HOIZ - natureplusgeprüft
Anbieterdetails








