Hausbeschreibung
Basisdaten
Außenmaße: 11,12m x 8,00m
Nutzfläche: 124,5m² - Geschosse: 1 1/2 - Satteldach 42°
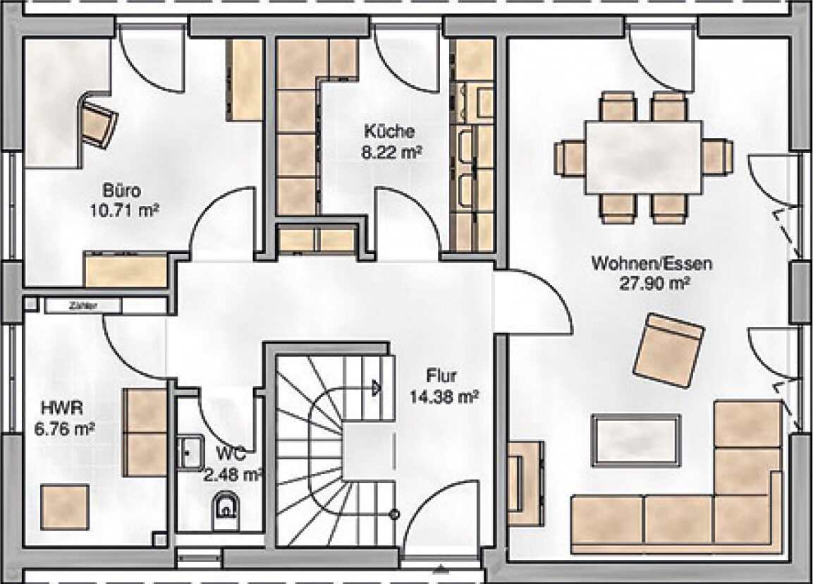
EG: Ess.- Wohnbereich - Küche - Büro - Gäste WC - HWR - Flur
DG: Schlafzimmer mit Ankleide - 2 Kinderzimmer - Badezimmer - Flur
Charmant und großzügig – Haus Milano bietet reichlich Platz für das Familienleben, insbesondere im offenen Wohn- und Essbereich. Dieses Massivhaus ist ideal für größere Familien, die viel Raum für gemeinsame Momente und individuelle Rückzugsorte suchen. In hochwertiger Massivbauweise gebaut, sorgt Milano für einen nachhaltigen und komfortablen Lebensraum, der Ihre Wünsche perfekt erfüllt.
Wir helfen Ihnen den Traum vom Eigenheim zu verwirklichen. Vom ersten Gespräch bis zur Schlüsselübergabe und auch danach, begleiten wir Sie sicher, schnell und kompetent auf dem Weg, der für die meisten Menschen der wichtigste im Leben ist: "Ein eigenes Heim". Der Traum vom Eigenheim ist für viele Menschen ein Lebensziel. Endlich die Freiheit genießen, in den eigenen vier Wänden zu leben und das Haus auf die eigenen Bedürfnisse anpassen. Dabei spielen nicht nur die Gestaltung, die Größe oder die Einrichtung des Hauses eine Rolle – wer heute ein Haus kauft und dabei eine nicht unerhebliche Investition tätigt, möchte ein Komplettpaket, dass die inneren und äußeren Werte einer Immobilie zu einem stimmigen Gesamtkonzept vereint. Das bedeutet: Ihr Haus muss zu Ihnen passen!
Sonstiges
All unsere Typenhäuser sollen Ihnen eine erste Idee geben. Grundsätzlich setzen wir alle Veränderungen um, wenn es bauseits möglich ist. Wenn das Haus doch ein bisschen größer werden soll, oder die Haustüre an einer anderen Stelle sein könnte, oder die Fenster bodentief besser wären....dann melden Sie sich bei uns - wir machen das schon.
Schlüsselfertig (einzugsfertig) laut unserer Bau.- Leistungsbeschreibung
Im Preis inbegriffen
Dieses Haus ist ausgestattet mit einer Fußbodenheizung, Luft-Wasser-Wärmepumpe und Rollläden. Außerdem wählen Sie die Fenster- und Haustürfarbe, sowie die sanitäre Standardeinrichtung verschiedener Markenfirmen. Unser Preis versteht sich inklusive Bodenplatte und Erdarbeiten.
Extras und Besonderheiten
Besonderheiten
GEG, Effizienzhaus 55, 40 oder 40 Plus möglich?
Unsere Massivhäuser können auch mit KfW 40 Förderung realisiert werden. Diese Förderung ermöglicht es Ihnen, energieeffiziente Gebäude zu errichten und gleichzeitig von attraktiven Zuschüssen und zinsgünstigen Darlehen zu profitieren. Kontaktieren Sie uns noch heute, um mehr über die Möglichkeiten der KfW 40 Förderung für Ihr Traumhaus zu erfahren.
Anbieterdetails









