Hausbeschreibung
Typisch amerikanisches Farmhaus. Auch als Stadthaus geeignet. 1 Ziergiebel, 4 Gauben. 31 Fenster & Türelemente mit Sprossen elektrisches Sektional-Garagentor. Fliegengitter und Zierfensterläden
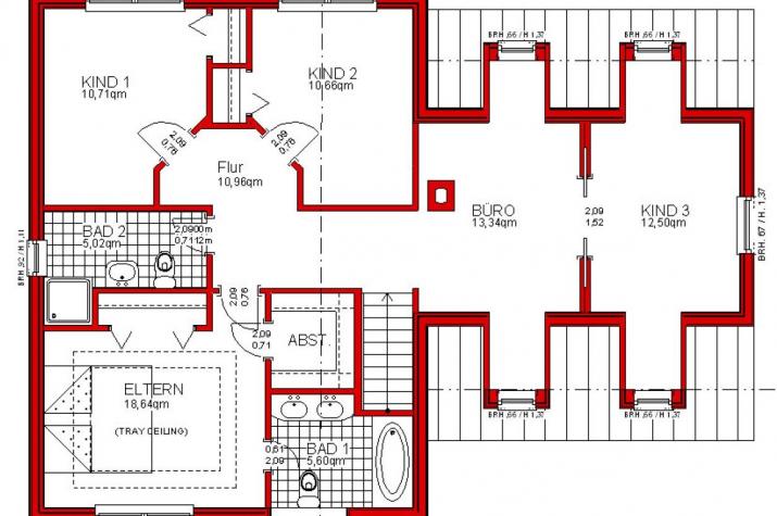
3 Wandschränke, 1 Kleiderkamer, 1 Garderoben-Kammer. 2 ½ Bäder
Klassische Treppe mit Garderobenkammer darunter.
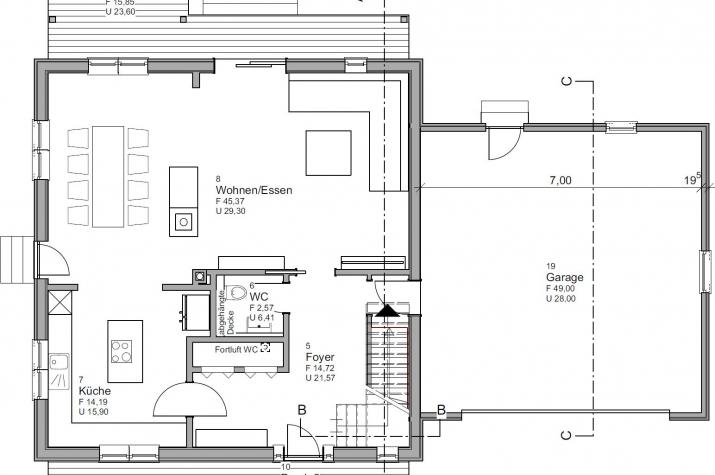
Inkl. Nutzlächen 202 m²
Sonstiges
größere Porch / Veranda links rund ums HausWenn [teil]unterkellert auch ohne Garagentrakt denkbarTWH hat diesess Haus 2018 als Ausbauhaus bei München erbaut, Fotos folgen
Extras und Besonderheiten
Besonderheiten
INKLUSIVE
Bausatz RAL-zertifiziert aus Deutschland inkl. Installationsebene im Bereich Außenwände
1 Ziergiebel, 4 Gauben
31 Fenster & Türelemente mit Sprossen elektrisches Sektional-Garagentor
Fliegengitter und Zierfensterläden
3 Wandschränke, 1 Kleiderkamer, 1 Garderoben-Kammer
Sehr viel Zierleisten
2 ½ Bäder
Klassische Treppe mit Garderobenkammer darunter [ab komplett ausgebaut]
Dämmung und Energiebedarf
Wir werden immer wieder gefragt: Entsprechen Ihre Häuser der deutschen EnEV. Ja selbstverständlich! Etwas anderes wäre gar nicht zulässig. Und selbstverständlich müssen wir für alle Häuser einen Energiepass bzw. Wärmeschutznachweis erstellen lassen. Das geschieht durch Partner unseres Statikers. Die meisten unserer Häuser liegen zwischen A und A+ und fast immer deutlich über den aktuellen Vorgaben. Wie gesagt: dass Beste aus 2 Welten!
THE WHITE HOUSE american dream homes design setzt daher auf hohe bis höchste deutsche Bauqualität. Häuser mit bis zu 42,5 cm starken Außenwänden, 280 mm Außenwanddämmung, Installationsebene in den Außenwänden und mit OSB unterfütterten Gipsplatten. In Holzständerbauweise- oder mit Blähton-Massiv-Fertigteilen.
Anbieterdetails














