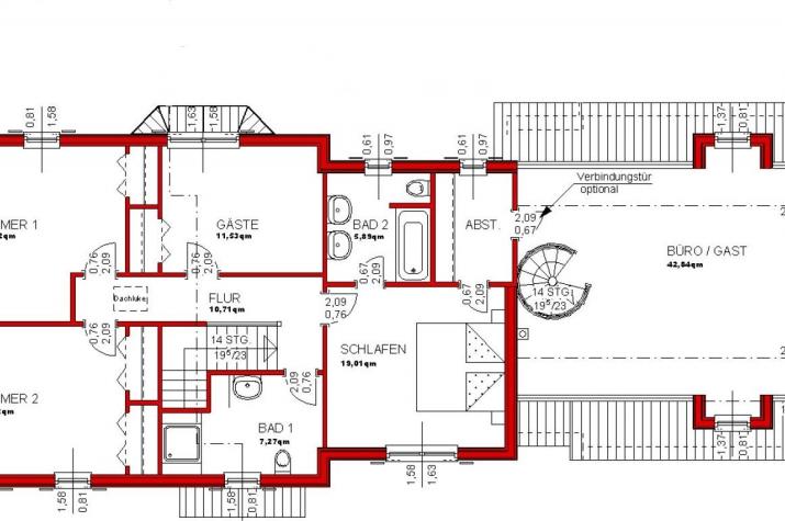
Hausbeschreibung
Mittelgroßes Herrenhaus für die 2-Kind-Familie
Sehr klassisch!
Großes Wohnzimmer, großes Esszimmer.
Gästezimmer. 2 1/2 Bäder
Auch mit Doppelgarage und Bonus Rooms
Inkl. Nutzflächen 190 m²
Sonstiges
Gegen AufpreisVerputz oder Verblender statt Holzsidingund / oder MASSIVZu groß: siehe auch MAJORZu klein: siehe auch GOVERNOR & PRESDIDENT
Extras und Besonderheiten
Besonderheiten
INKLUSIVE
Bausatz RAL-zertifiziert aus Deutschland inkl. Installationsebene im Bereich Außenwände
ODER MASSIV gegen Aufpreis siehe SERIES SOLID SENATOR 188 S
Repräsentativer Eingang mit 2 Säulen und 1 Erker
34 Fenster & Türelemente mit Sprossen beidseitig
Fliegengitter und Zierfensterläden
4 Wandschränke, 2 Kleiderkammern
Sehr viel Zierleisten
Klassische Treppe mit Garderobenkammer darunter [ab komplett ausgebaut]
2 ½ Bäder
2 Kaminschornsteine, Kaminanlagen ab bezusgfertig,
Cultured Stone Used Brick Verblender gegen Aufpreis
Dämmung und Energiebedarf
Wir werden immer wieder gefragt: Entsprechen Ihre Häuser der deutschen EnEV. Ja selbstverständlich! Etwas anderes wäre gar nicht zulässig. Und selbstverständlich müssen wir für alle Häuser einen Energiepass bzw. Wärmeschutznachweis erstellen lassen. Das geschieht durch Partner unseres Statikers. Die meisten unserer Häuser liegen zwischen A und A+ und fast immer deutlich über den aktuellen Vorgaben. Wie gesagt: dass Beste aus 2 Welten!
THE WHITE HOUSE american dream homes design setzt daher auf hohe bis höchste deutsche Bauqualität. Häuser mit bis zu 42,5 cm starken Außenwänden, 280 mm Außenwanddämmung, Installationsebene in den Außenwänden und mit OSB unterfütterten Gipsplatten. In Holzständerbauweise- oder mit Blähton-Massiv-Fertigteilen.
Anbieterdetails







