Hausbeschreibung
Wohngesundes Wohlfühlen
Ein Grundstück vor den Toren Münchens, die bewusste Entscheidung für wohngesundes Bauen mit Baufritz und viel Fingerspitzengefühl für die Gestaltung sind die Zutaten, aus denen ein großzügiges Familienheim entstand.
Seit 2016 leben Eva Herb und ihr Mann einen lang gehegten Traum: auf dem Land, in einem modernen, lichtdurchfluteten Haus, mit ihrem Hund zu Füßen und den beiden Pferden nur wenige Minuten entfernt. Gebaut haben sie mit Baufritz. Das Biohaus-Bauunternehmen gilt als der führende Experte für wohngesundes Bauen. Ausschließlich hochwertige, ökologische und schadstoffgeprüfte Materialien kommen in den gesundheitszertifizierten Häusern aus Holz und Naturbaumaterialien zum Einsatz.
Seinen Charakter als Holzhaus zeigt das Zuhause der Herbs bereits vor dem Betreten des Gebäudes. Für den überdachten Eingangsbereich zwischen Haus und Doppelgarage fiel die Wahl auf die naturbelassene Holzverschalung „Rondo“. Der Erker auf der Gartenseite, der die beiden hölzernen Terrassen voneinander trennt, greift das Spiel mit dem Naturbaustoff aus Lärche erneut auf. Liebevolles Detail: Selbst der Rasenmähroboter im Garten hat ein kleines Holzhaus als Unterstand bekommen. Die restliche Fassade wurde mit einem mineralischen Putz versehen. Das frische Weiß findet seine stimmigen Kontrastpunkte im dunklen Grau der Fensterrahmen, der Bedeckung des Satteldachs und des Garagentors.
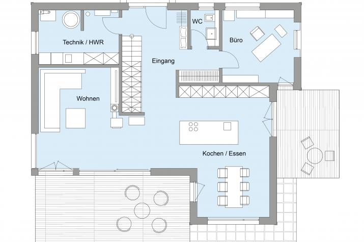
Knapp 190 Quadratmeter bietet das zweigeschossige Haus dem jungen Ehepaar zum Leben. Für einen freundlichen Empfang sorgt das helle Entree. Linker Hand sind Gäste-WC und Büro angeordnet, zur rechten verbirgt sich Technik- und Hauswirtschaftsraum hinter einer Tür. Die Treppe weist die Richtung zu den Privatgemächern im Obergeschoss. Magisch angezogen wird der Blick im Eingangsbereich jedoch von der großen Fensterfront, die auf der gegenüberliegenden Seite die Sonne in den Wohnraum einlädt. Nach wenigen Schritten diesem Licht entgegen öffnet sich der Koch- und Essbereich, der fließend in das Wohnzimmer übergeht. Keine Wand stört die Großzügigkeit, die sich über gläserne Schiebetüren auf zwei Terrassen und den gepflegten Garten erweitert.
105 Quadratmeter haben die Herbs dem Erdgeschoss gegönnt. Doch es ist nicht die Fläche allein, die jede Menge Raum zum Wohlfühlen bietet. Statt Schränke als Stauraum zu stellen, entschieden sie sich für clevere Einbauten, etwa unter der Treppe im Erdgeschoss und im Flur auf der zweiten Etage. Diese dezenten Diener überlassen bewusst platzierten Solitären und liebevoll inszenierten Details den Raum. Eines dieser Stücke ist der Esstisch, gefertigt aus einer 500 Jahre alten Eiche. Charmanter Blickfang ist der gläserne Kamin, der zugleich als eleganter Raumteiler dient. Gemütlich und dabei nicht überladen wollten die Herbs ihr Zuhause wissen. Ausdruck findet dieser Wunsch in wohldosierten Kontrasten aus warmem Holz und der Kühle weißer Möbel. Angenehme Akzente setzen das graue Sofa, das Grün der Zimmerpflanzen und Accessoires in Naturfarben.
Dieses Farbenspiel setzt sich im Obergeschoss fort. Auf 84 Quadratmetern sind hier zwei Kinderzimmer und ein Duschbad angeordnet. Als weitläufiger Rückzugsort präsentiert sich der Elternbereich. Vom Schlafzimmer aus gelangen die Herbs in die Ankleide, die wiederum an das großzügige Masterbad grenzt.
Extras und Besonderheiten
Besonderheiten
Mineralische Putzfassade in Weiß - Erker und Eingangsbereich mit naturbelassener Holzverschalung "Rondo" - Satteldach mit Dachüberstand - Terasse im Süden und Osten - überdachter Eingangsbereich - Dachfenster, das viel Licht in den Flur des Dachgeschosses einströmen lässt
Dämmung und Energiebedarf
biologische Naturdämmung aus Hobelspan - HOIZ - natureplusgeprüft, IBN- und Cradle to Cradle-zertifiziert
Anbieterdetails








