Hausbeschreibung
Hang zur Natur
Hoch oben über dem Tal thront dieses moderne Holzhaus. Weit reicht der Blick von hier über die Dächer der umliegenden Dörfer und Städte, über die Wiesen und über die angrenzenden Wälder. In dieser erhabenen Position haben die Gedanken Raum. Es ist ein Ort zum Wohlfühlen und Entspannen, ein Ort an dem zu sich selbst findet. Das spiegelt sich auch in der Gestaltung des Hauses wieder. Es braucht keine üppigen Verzierungen oder aufwendige Anbauten, vielmehr konzentrierte man sich auf das Wesentliche. Mit der schlichten silbergrauen Holzfassade, der klaren Formgebung und dem bewussten Verzicht auf Dachüberstände passt es sich perfekt in seine Umgebung ein, ohne sie dabei zu dominieren. Jede Seite zeigt ein anderes Gesicht: Während sich das Gebäude zur Straßenseite eher geschlossen präsentiert, öffnet es sich zur Hangseite mit üppigen Glasflächen. Beeindruckend ist die über zwei Etagen reichende Übereck-Verglasung, hinter der sich ein hoher Luftraum erstreckt. Rund um das Haus finden sich gemütliche Rückzugs- und Treffpunkte, die zum Entspannen im Freien einladen – etwa die überdachte Terrasse mit angrenzendem Sauna-Haus, der Naturschwimmteich oder auch die vorgelagerte Loggia, die über dem Eingang zu schweben scheint. Mit ihrem Satteldach verleiht sie dem Haus eine fast schon futuristische Anmutung. Um den Platz auf dem Grundstück optimal auszunutzen, wurde die Garage behutsam in den steilen Hang hineingeschoben.
Unkonventionelle Planung
Der Bezug zur Natur war auch bei der Innengestaltung ein wichtiger Punkt: Nahezu jeder Raum gibt den Blick auf die umliegende Landschaft frei. Besonders schöne Aussichten genießen die Bauherren im Schlafzimmer: Vom Bett aus können sie über die Galerie hinweg beobachten, wie sich der Wald morgens aus dem Nebel löst. Aber auch das gemütliche Sitzfenster im Essbereich oder der Sessel vor der Übereck-Verglasung bieten herrliche Ausblicke. Gleichzeitig weisen die üppigen Verglasungen der Sonne den Weg ins Innere des Hauses. Die offene Raumaufteilung sorgt dafür, dass sie sich in jeden Winkel des Hauses ausbreiten kann. Das wissen auch der Familienhund und die Katze zu schätzen, die es sich gerne im Sonnenschein bequem machen.
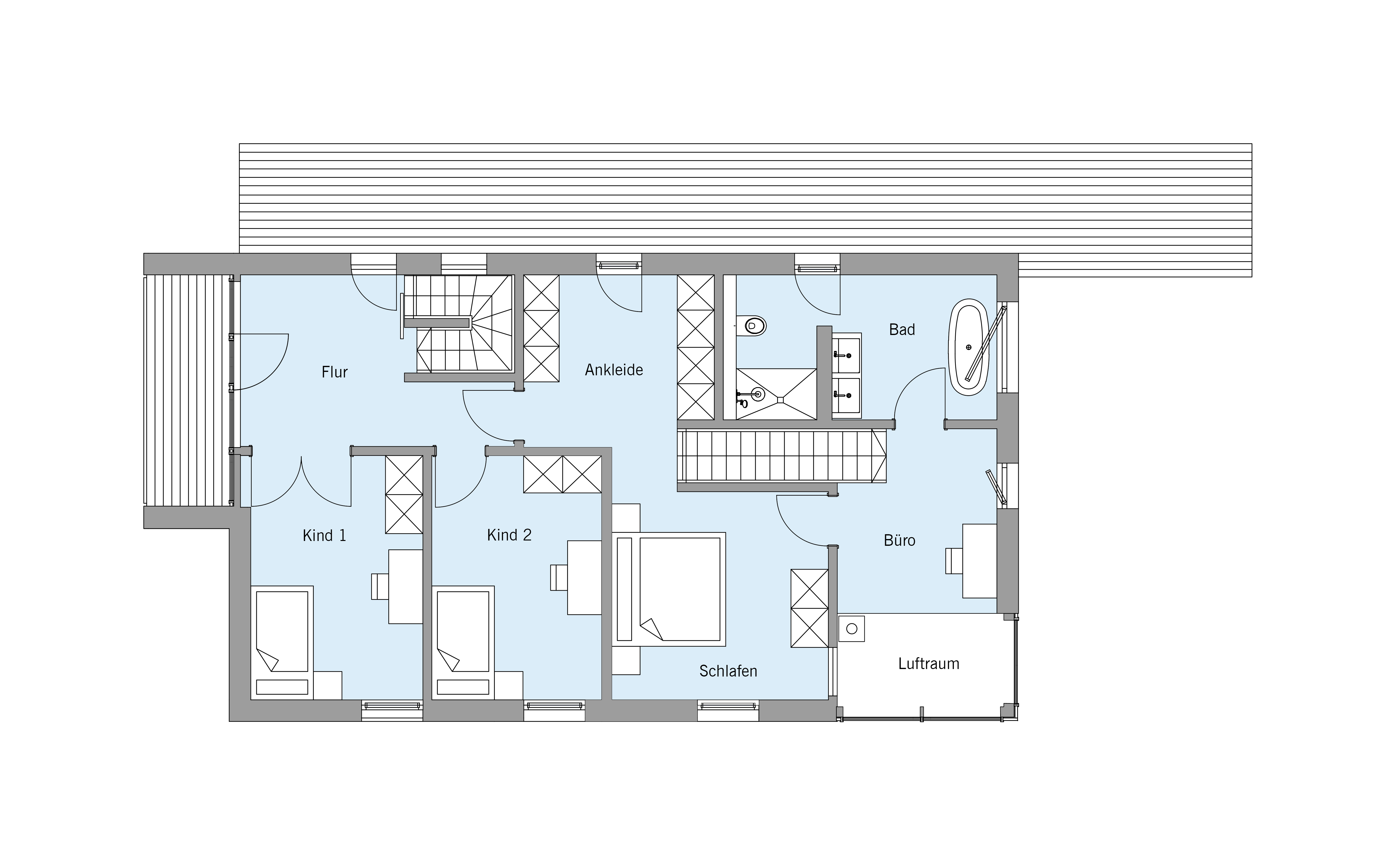
Das Familienleben spielt sich hauptsächlich im Erdgeschoss ab, wo sich die Gemeinschaftsräume befinden. Hier wird zusammen gekocht, gegessen oder einfach nur auf der Couch entspannt. An kühlen Abenden verbreitet der Kaminofen eine behagliche Atmosphäre. Das Dachgeschoss beherbergt die Privaträume sowie ein luftiges Büro. Ungewöhnlich ist im ersten Moment, dass gleich zwei Treppen nach oben führen. Das hat vor allem praktische Gründe: Über die erste Treppe erreicht man von der Diele aus auf schnellem Weg die beiden Kinderzimmer. Sollten der Nachwuchs erst spät nachts nachhause kommen, muss er nicht erst durch das ganze Haus schleichen. Die zweite Treppe führt vom Essbereich aus direkt auf die Galerie, wo sich die Hausherren ein aussichtsreiches Office eingerichtet haben. An sie schließen sich das Elternschlafzimmer mit geräumiger Ankleide sowie das Familienbad an. Und noch einen Vorteile bietet der planerische Kniff mit den zwei Treppen: Bei Bedarf kann das Einfamilienhaus mit wenig Aufwand jederzeit in zwei separate Wohneinheiten geteilt werden. Im EG ist bereits ein zweites Badezimmer mit ebenerdiger Dusche integriert und im Dachgeschoss sind sämtliche Anschlüsse für eine Küche vorhanden.
Nicht nur durch den Einsatz nachhaltiger Materialien und baubiologisch unangefochtener Konsequenz, sondern auch mit durchdachten Planungen wie hier, beim „Haus am Wald“, unterstreicht der Holzhaushersteller Baufritz seinen Sinn für zukunftsweisende Immobilien. Ein weiteres Statement in Sachen Nachhaltigkeit, welches den Entwurf passender nicht beschreiben könnte: Ein Haus kann gleichzeitig für die aktuelle Lebenssituation gebaut sein und, Dank geistreicher Weitsicht, aber schon heute allen Ansprüchen für sich verändernde Lebensphasen in der Zukunft genügen.
Sonstiges
Inklusive einer Elektrosmog-Schutztechnik, abgeschirmte Leitungen, gesundes Bio-LichtKonzept, besonders hochwertige und baubiologisch einwandfreie Innenraumausstattung
(inkl. Türen, Innenraumfarben, Bodenbeläge, schadstoffgeprüfter Bodenkleber, Fliesen
etc.)
Extras und Besonderheiten
Extras
Naturschwimmteich mit angrenzendem Kiesbeet - Freistehender Kamin zaubert eine gemütliche
Atmosphäre
Besonderheiten
Besonderheiten Außen:
Die schlichte silbergraue Holzfassade und die farblich passenden Dachziegel lassen das
Haus schlicht und gleichzeitig modern wirken - Absoluter Eyecatcher ist die Loggia,
welche in ihrer Form das Satteldach nachahmt. Durch sie entsteht gleichzeitig ein
praktisch überdachter Eingangsbereich - Puristische Architektur mit einem Hauch
Exzentrik - Haustür aus Holz mit Glaselement - Kein Dachüberstand - Die Garage mit
Platz für 3 Autos schmiegt sich in das steile Hanggrundstück - Holzterrasse
teilüberdacht mit angrenzendem Sauna-Haus - Terrassenüberdachung aus Glas -
Naturschwimmteich mit angrenzendem Kiesbeet - Sichtbare Fallrohre aus Titanzink
sowie externer Edelstahl-Kamin für Holz-Pellet-Heizung - Bodentiefes Übereckfenster
über beide Stockwerke - Französische Balkone im OG
Besonderheiten Innen:
Auf Bodenplatte realisiert - Traumhafter Panoramablick ins Tal und in den
angrenzenden Wald, sogar vom Bett "durch" die Galerie hindurch und von der
Badewanne - Bodentiefe Fenster- und Fenstertüren sowie ein festverglastes KomfortSitzfenster sorgen für viel Helligkeit - Freistehender Kamin zaubert eine gemütliche
Atmosphäre - Die Galerie im OG beherbergt ein gemütliches Büro und sorgt gleichzeitig
für ein großzügiges Raumgefühl - Gestaltung des Interieurs in Holz- und Anthrazittönen
- Im Wohnbereich verbindet eine geradläufige Treppe die Geschosse auf "schnellem
Wege", vom Eingangsbereich führt eine zweite, halbgewendelte Treppe ebenfalls ins OG
- Deckenhohe Räume im OG - Elternschlafzimmer mit direktem Zugang zu begehbarer
Ankleide - Zwei nebeneinander liegende Kinderzimmer im OG - Technikraum neben
der Garage, zugänglich durch Außentür
Dämmung und Energiebedarf
Außenwand perfekt wämegedämmt, 2-facher umweltfreundlicher Farbanstrich
Anbieterdetails









